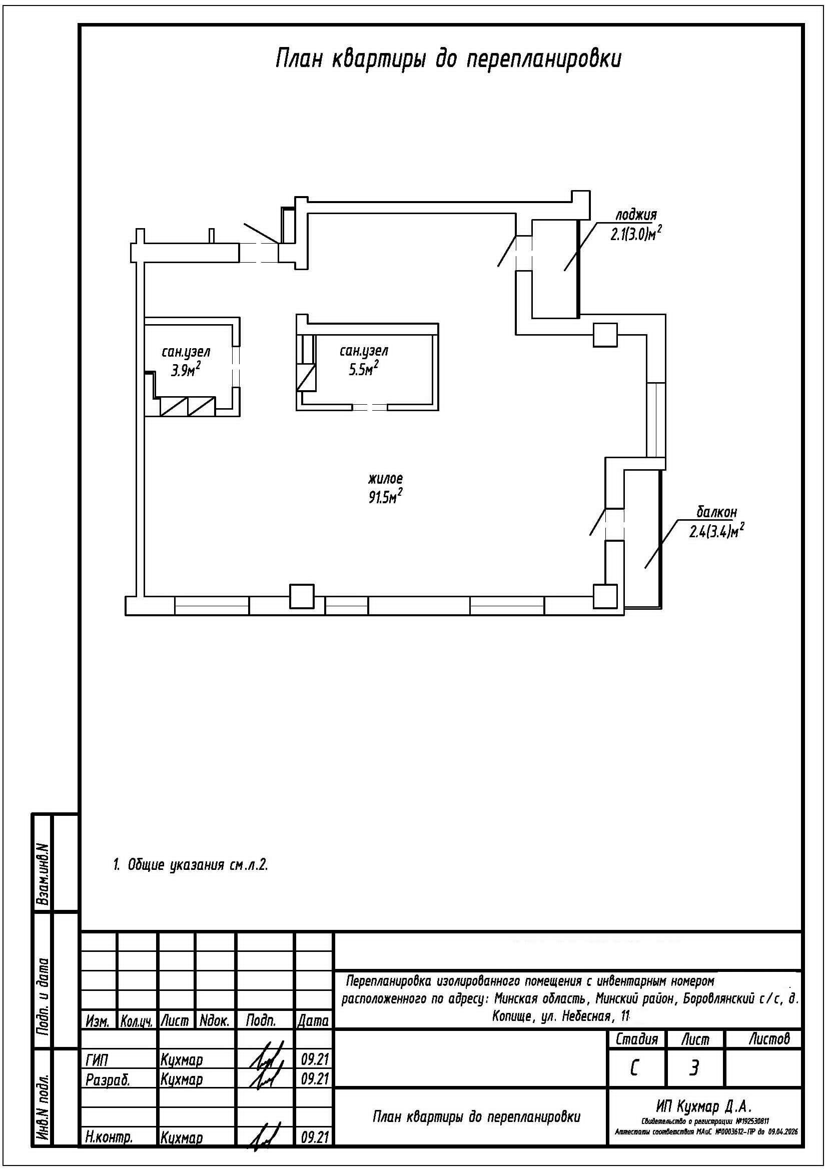
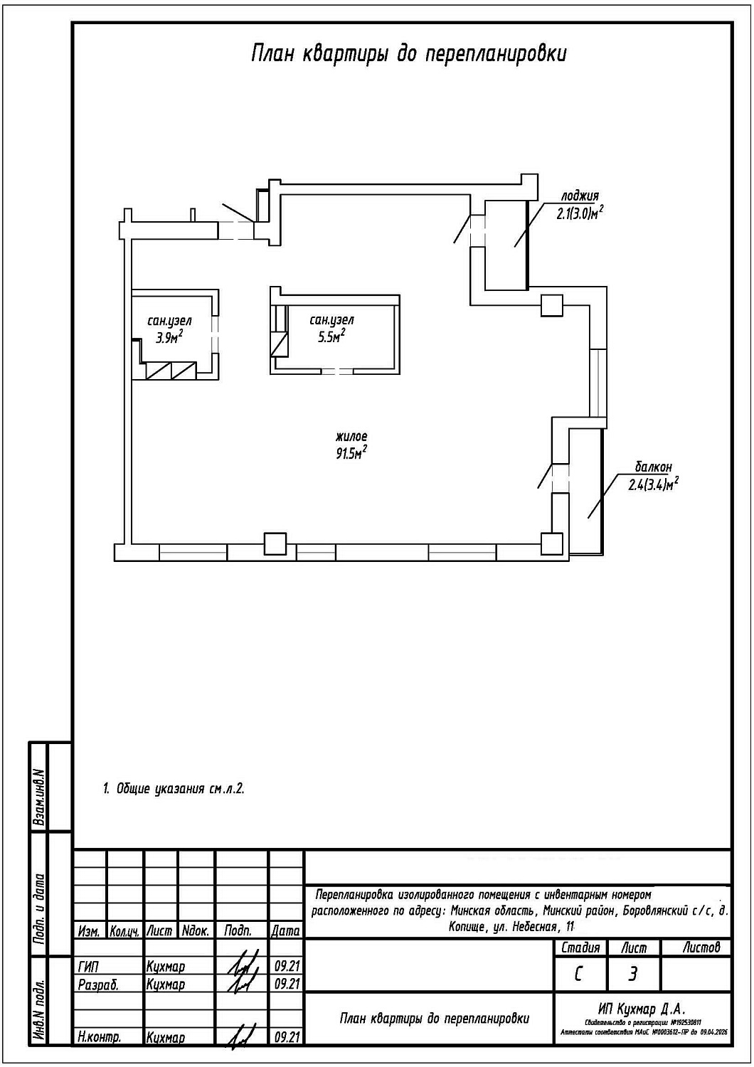
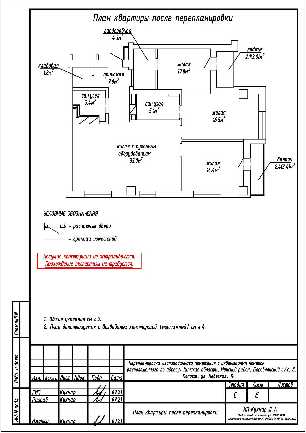
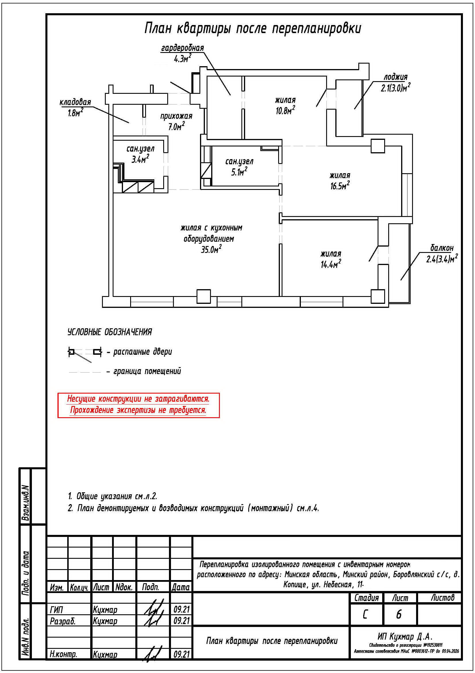
Перепланировка квартиры по ул. Небесная, 11 в ЖК «Новая Боровая»
Пожелания заказчика:
- Разделение общего помещения жилой на три жилые, жилую с кухонным оборудованием, гардеробную, прихожую;
- Перенос дверного проема в санузле;
- Устройство зашивок в санузлах.
Нами были разработаны следующие разделы проектной документации для согласования в исполкоме:
- АС - архитектурно-строительные решения.
