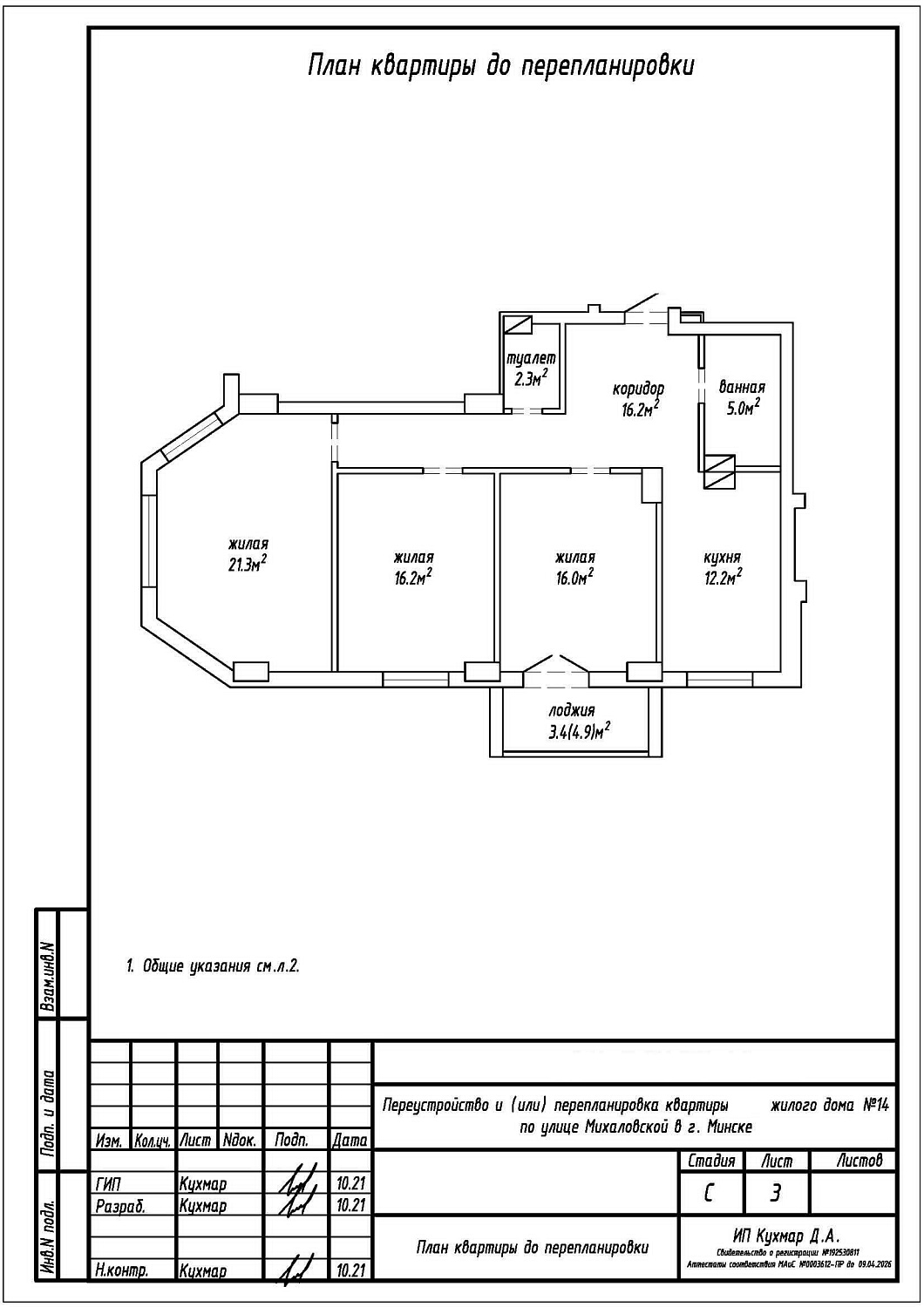
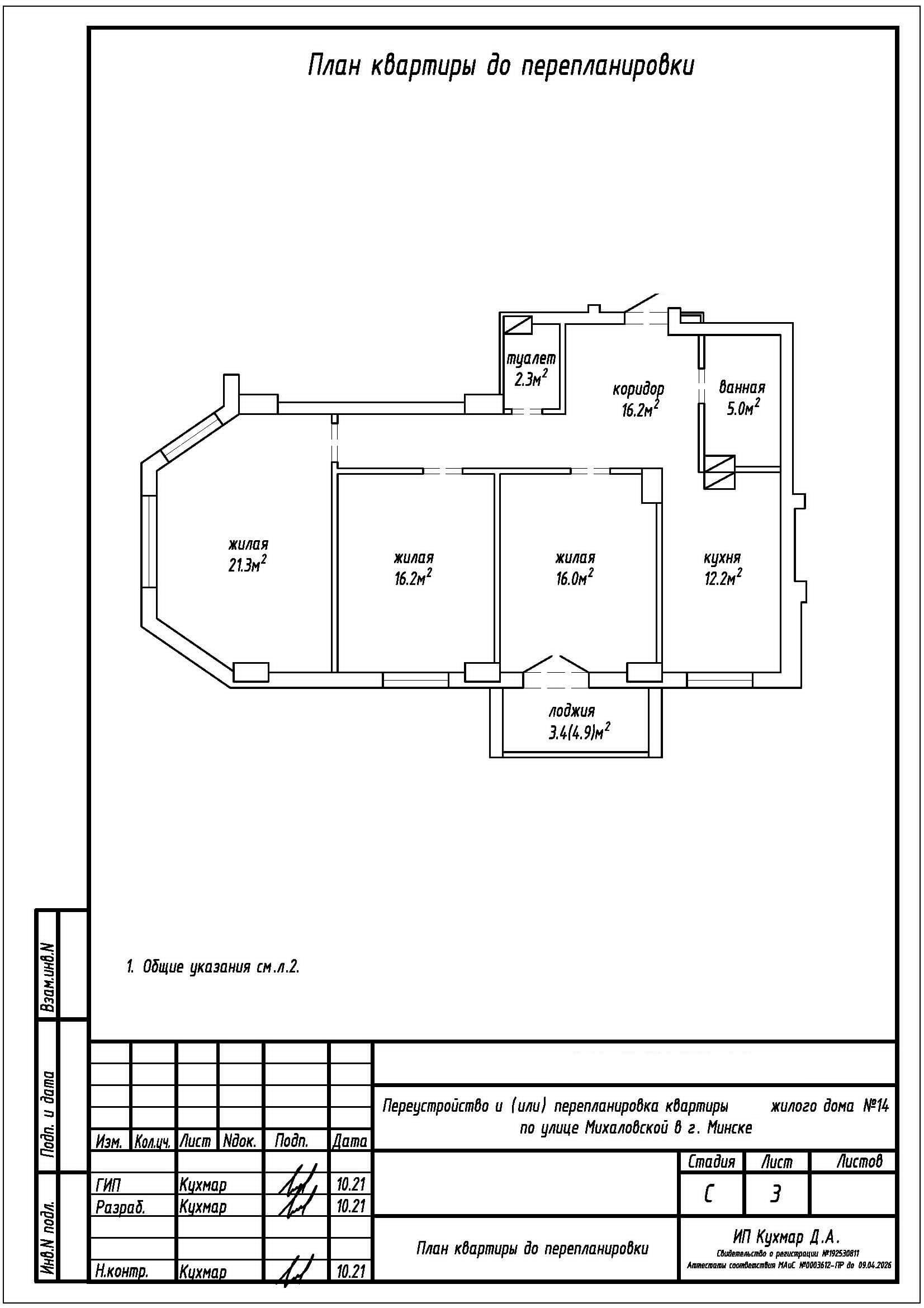
Перепланировка квартиры по ул. Михайловская, 14 в ЖК «Квартал Михалово»
Пожелания заказчика:
- Объединение жилой с кухней;
- Демонтаж части перегородки между жилой и коридором;
- Увеличение туалета за счет коридора;
- Устройство зашивок в туалете и ванной;
- Смещение дверного проема в ванной.
Нами были разработаны следующие разделы проектной документации для согласования в исполкоме:
- АС - архитектурно-строительные решения.
