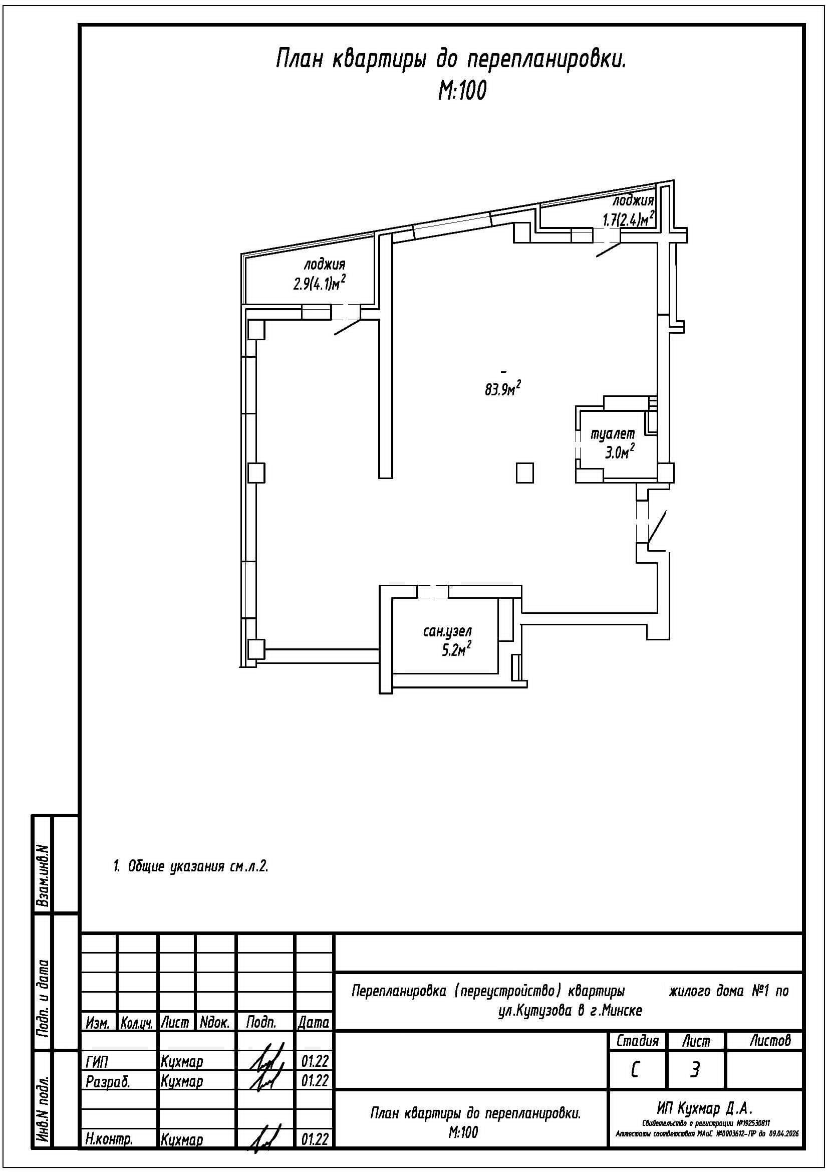
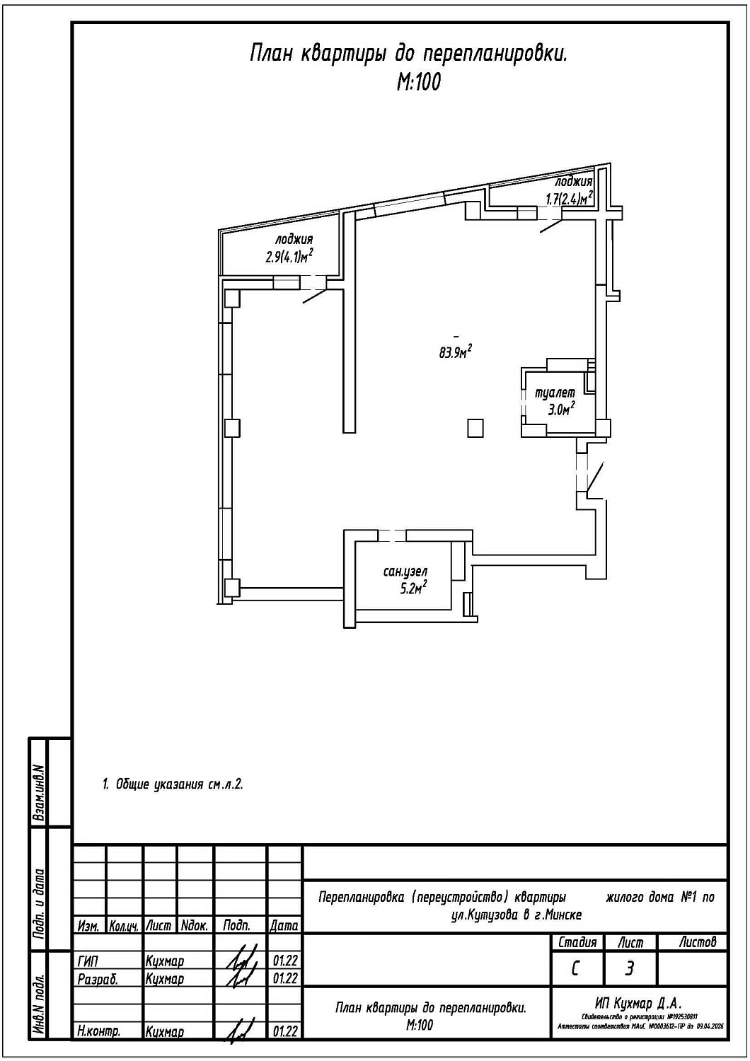
Перепланировка квартиры по ул. Кутузова, 1 в г. Минске
Пожелания заказчика:
- Разделение общей жилой на жилую с кухонным оборудованием, три жилые, прихожую, гардеробную и кладовую;
- Увеличение габаритов туалета;
- Устройство зашивок из ГКЛ в санузле.
Нами были разработаны следующие разделы проектной документации для согласования в исполкоме:
- АС - архитектурно-строительные решения.
