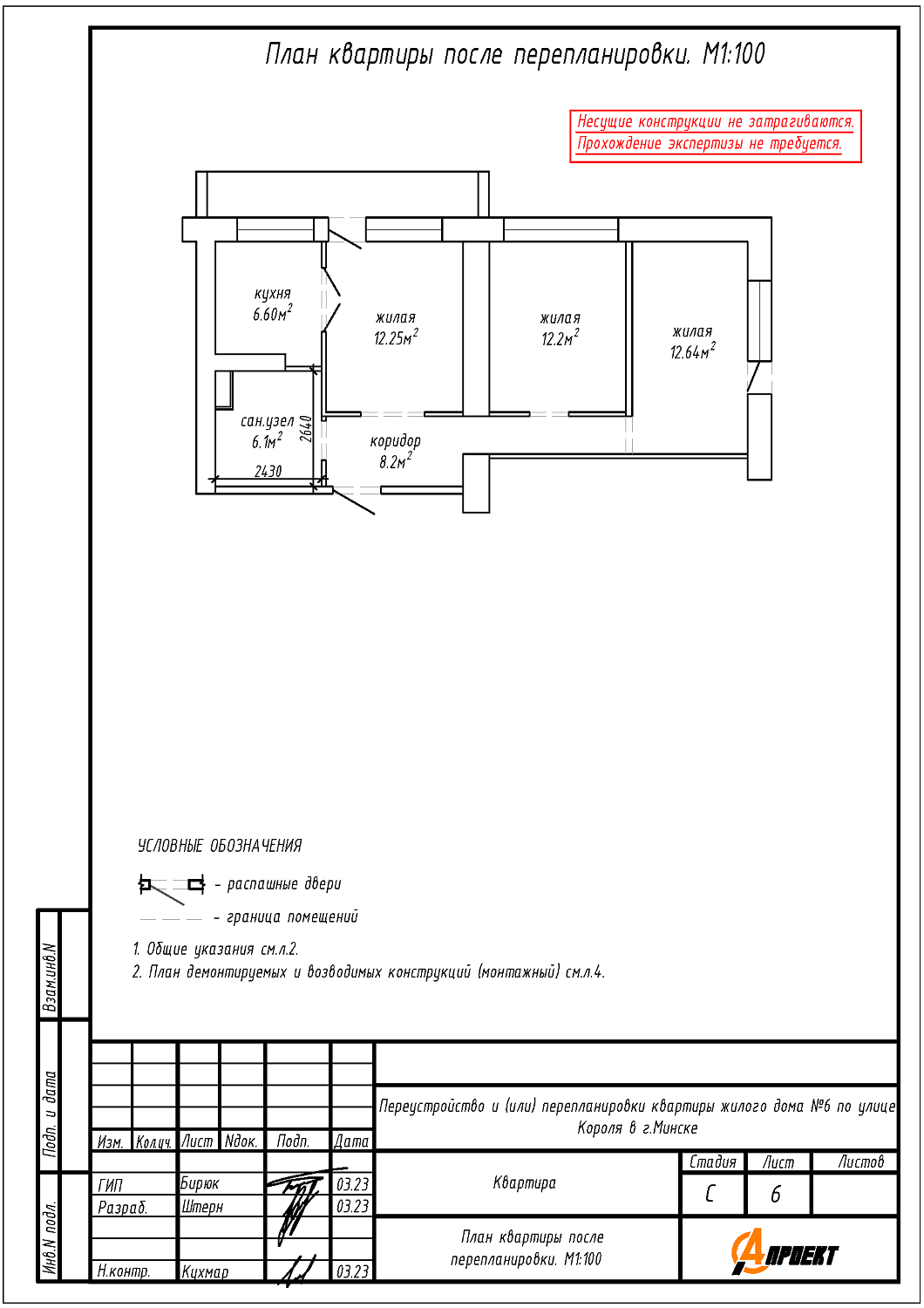
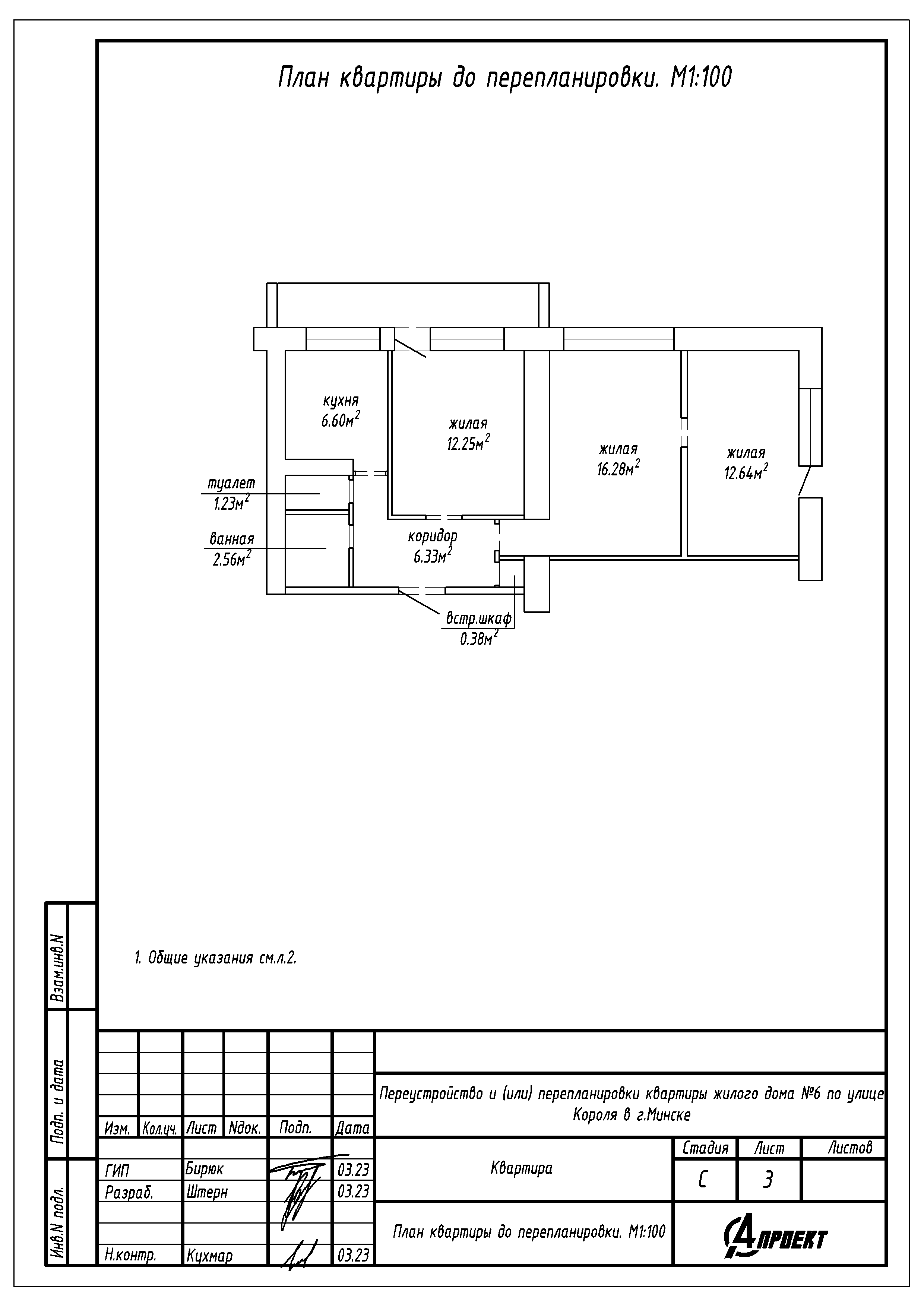
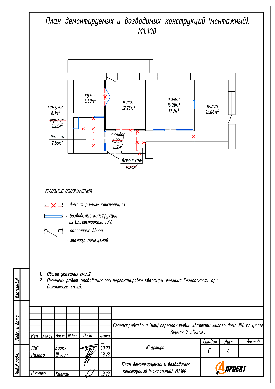
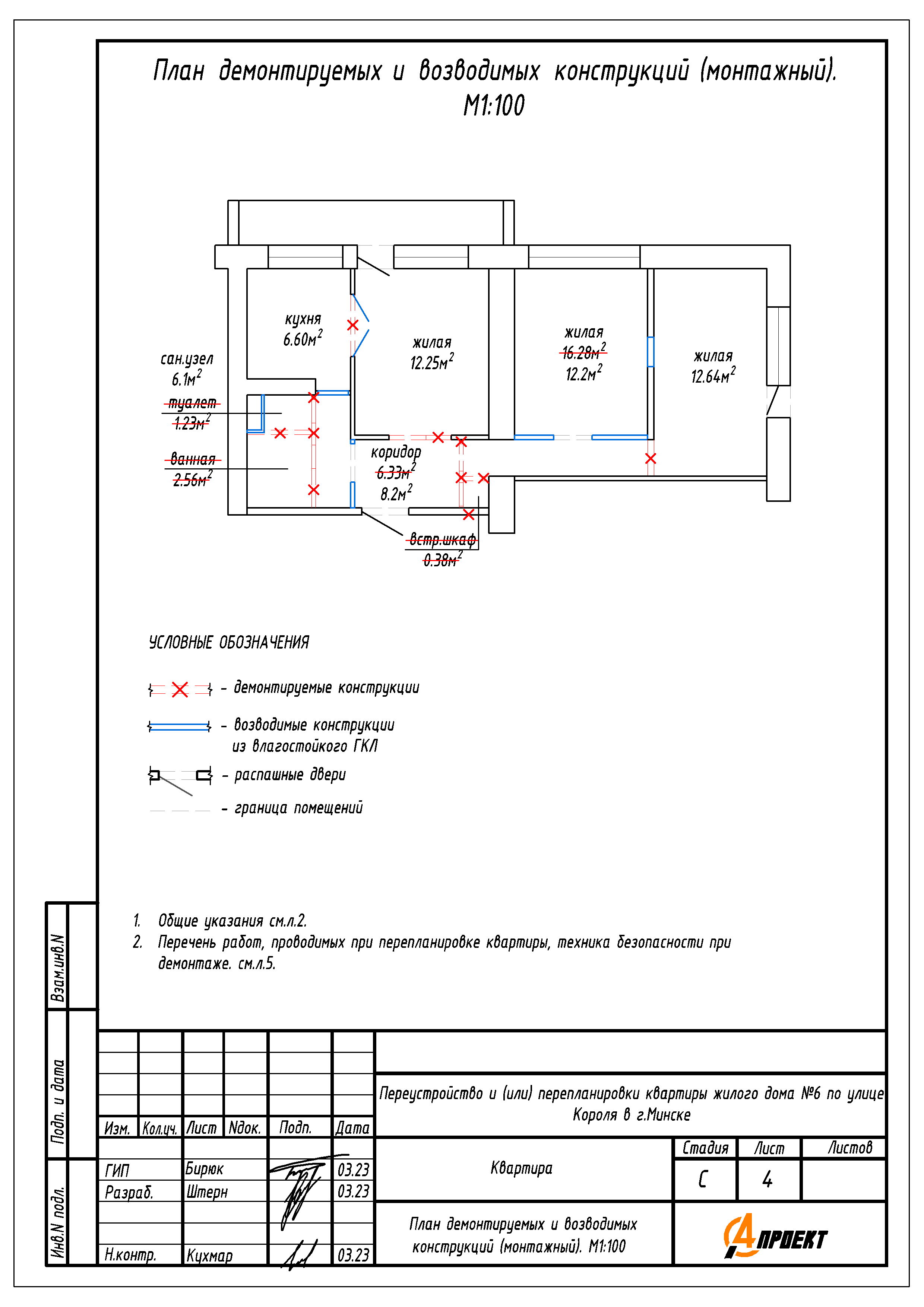
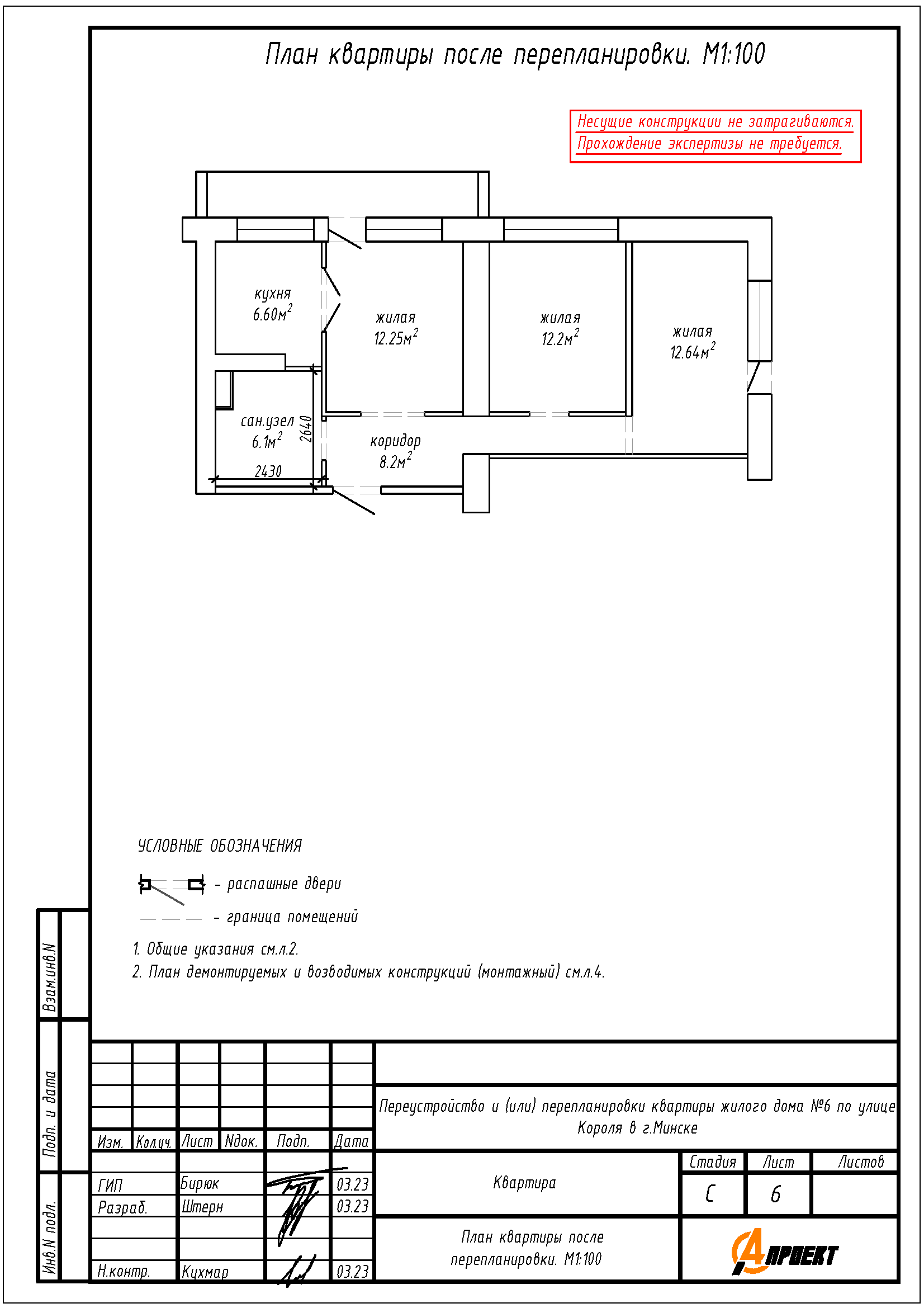
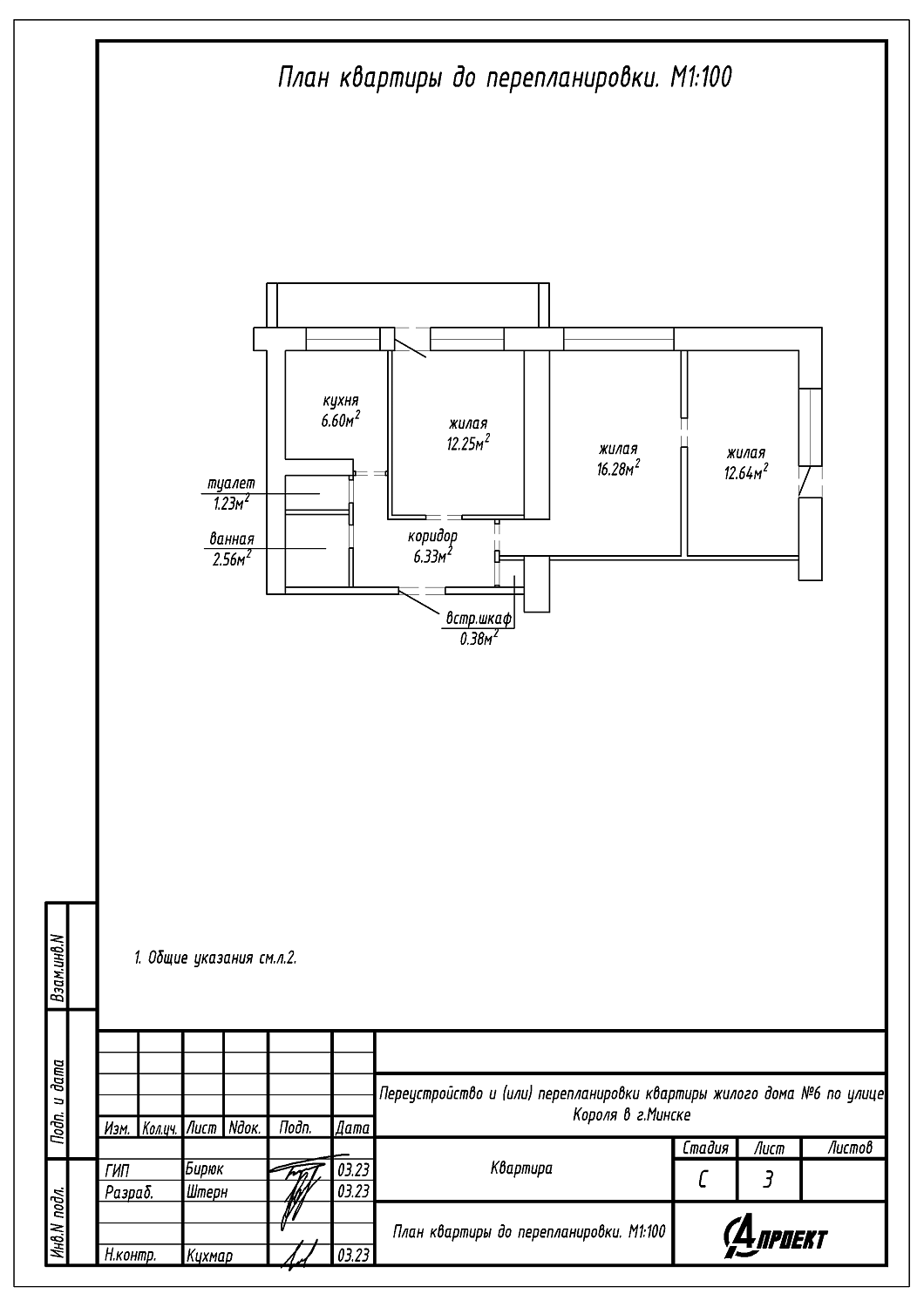
Перепланировка квартиры по ул. Короля, 6
Пожелания заказчика:
- Объединение ванной и туалета в единый санузел;
- Закладка проёма между кухней и коридором с целью увеличения совмещенного санузла;
- Устройство проёма между кухней и жилой;
- Демонтаж встроенного шкафа;
- Закладка дверного проёма между жилыми;
- Устройство дверного проёма между жилой и коридором;
- Расширение дверного проёма между жилой и коридором.
Нами были разработаны следующие разделы проектной документации для согласования в исполкоме:
- АС - архитектурно-строительные решения.
