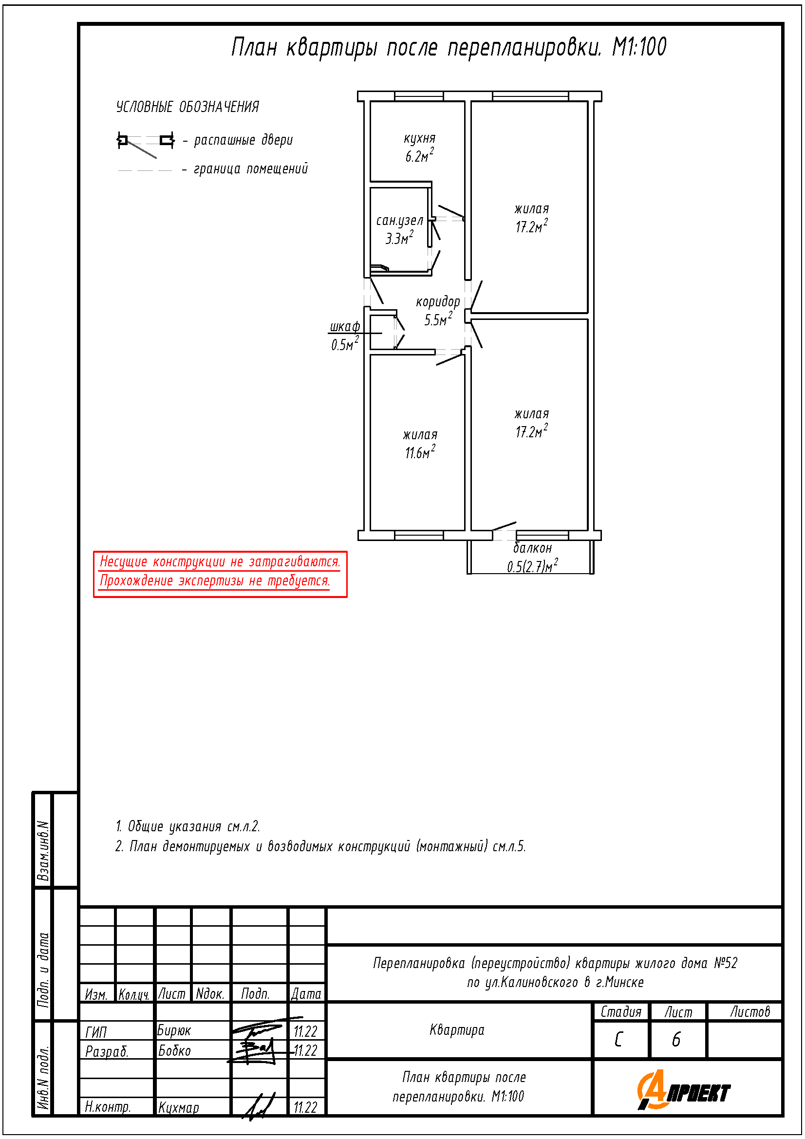
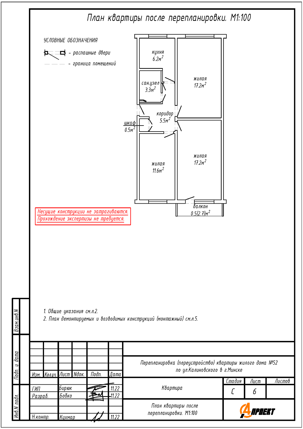
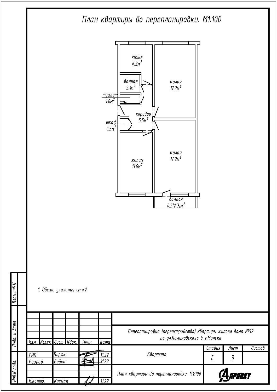
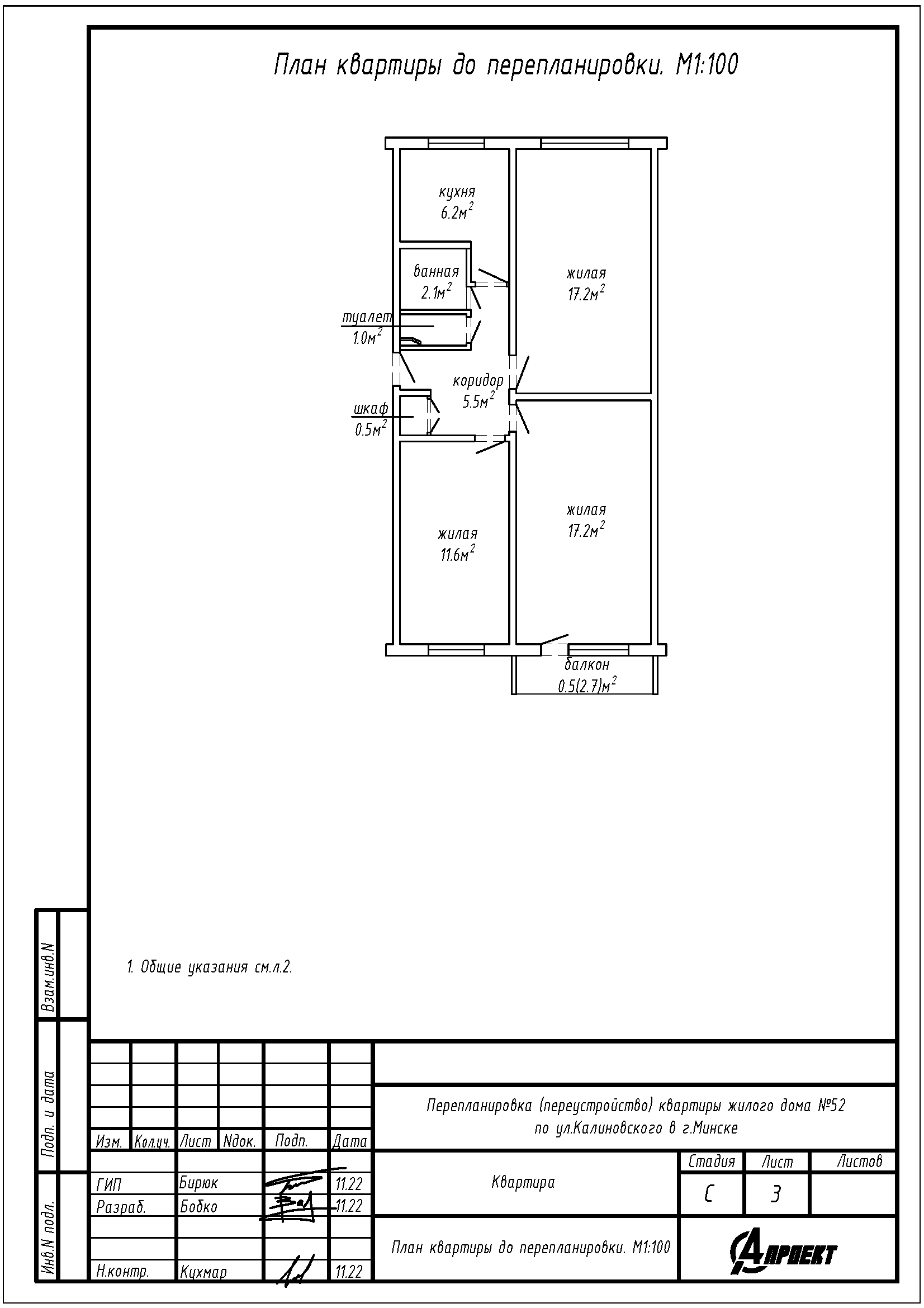
Перепланировка квартиры по ул. Калиногвского, 52 в г.Минске
Пожелания заказчика:
- Объединение ванной и туалета в единый санузел.
Нами были разработаны следующие разделы проектной документации для согласования в исполкоме:
- АС - архитектурно-строительные решения.
