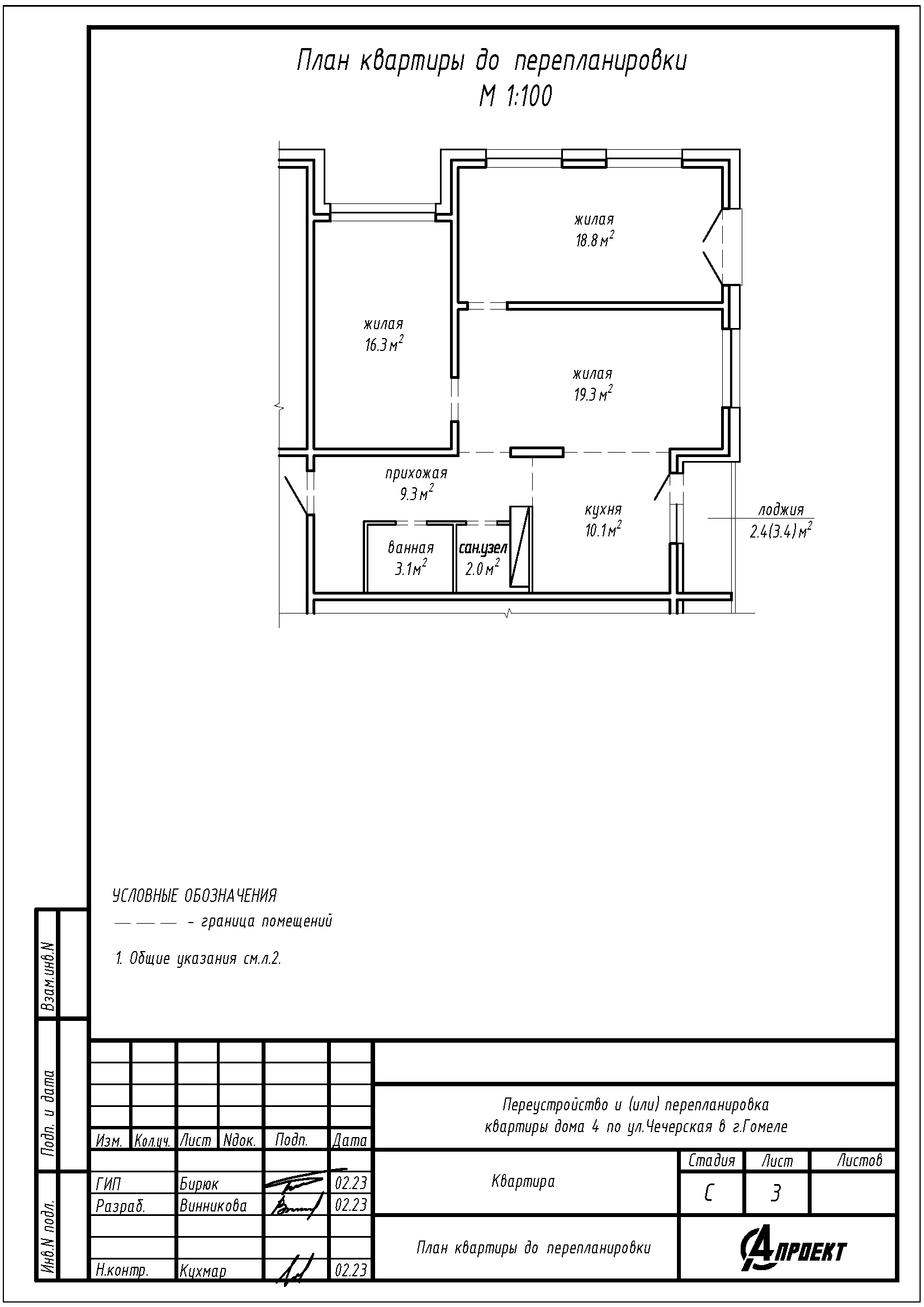
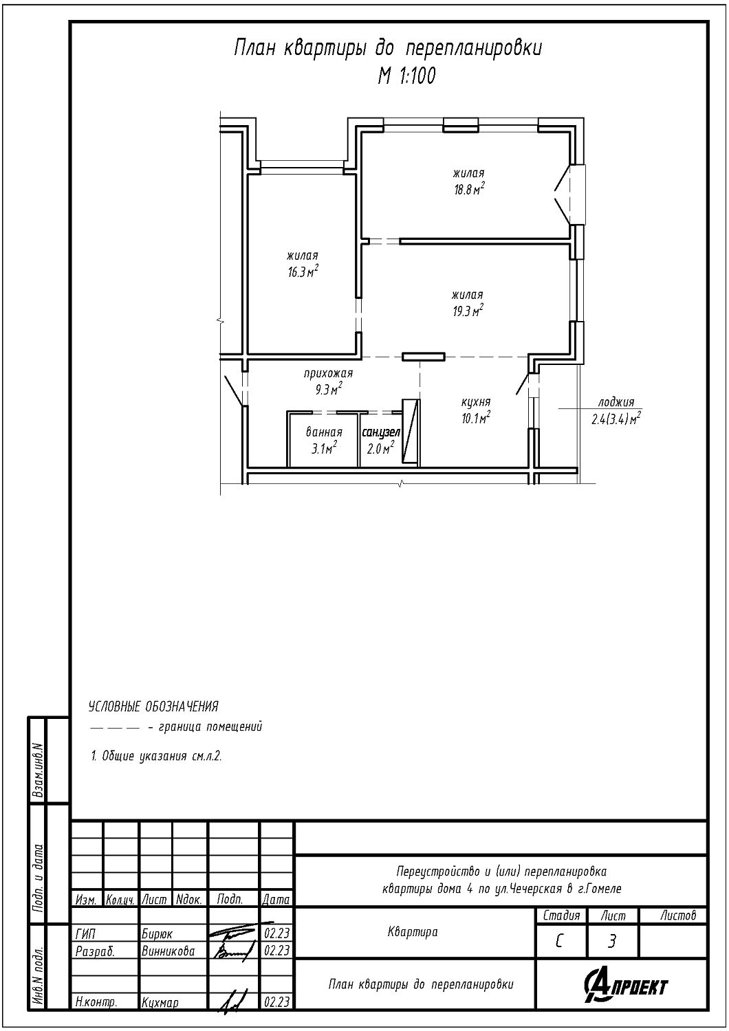
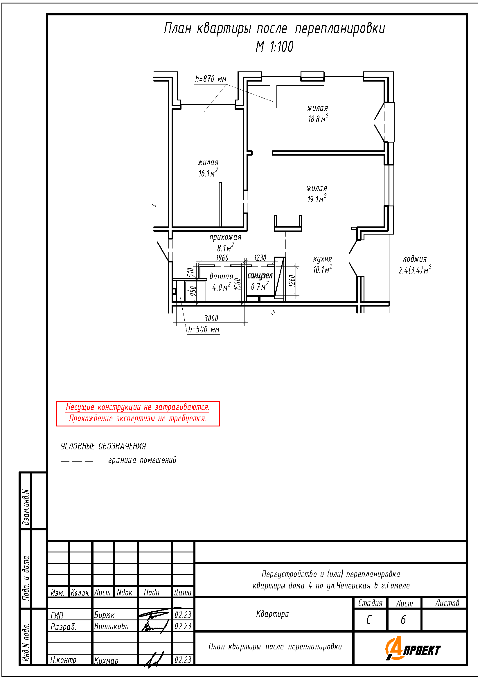
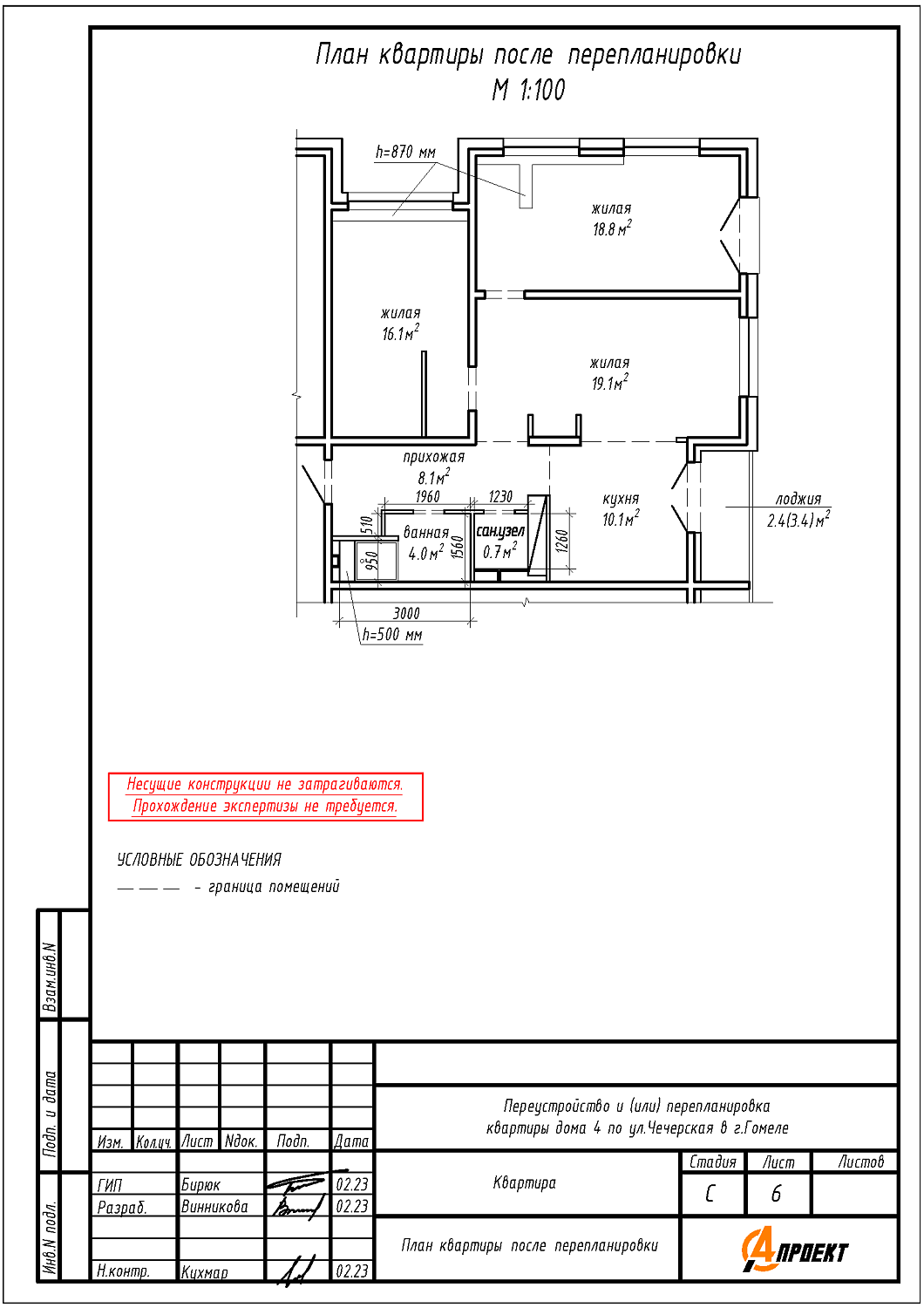
Перепланировка квартиры по ул. Чечерская, 4 в г. Гомеле
Пожелания заказчика:
- В помещении кухни демонтаж оконно-дверного блока выхода на лоджию, подоконного участка стеновой панели с устройством в организованном проёме распашных дверей;
- Устройство перегородок в жилой с организацией ниши;
- Устройство перегородок в комнате;
- Увеличение площади ванной комнаты за счёт части площади прихожей, устройство душевого поддона, устройство декоративных зашивок из ГКЛВ;
- Устройство зашивок из ГКЛ в комнатах;
- Зашивка инсталляции и труб коммуникаций в санузле;
- Замена и перенос существующего отопительного прибора.
Нами были разработаны следующие разделы проектной документации для согласования в исполкоме:
- АС - архитектурно-строительные решения;
- ОВ - отопление и вентиляция.
