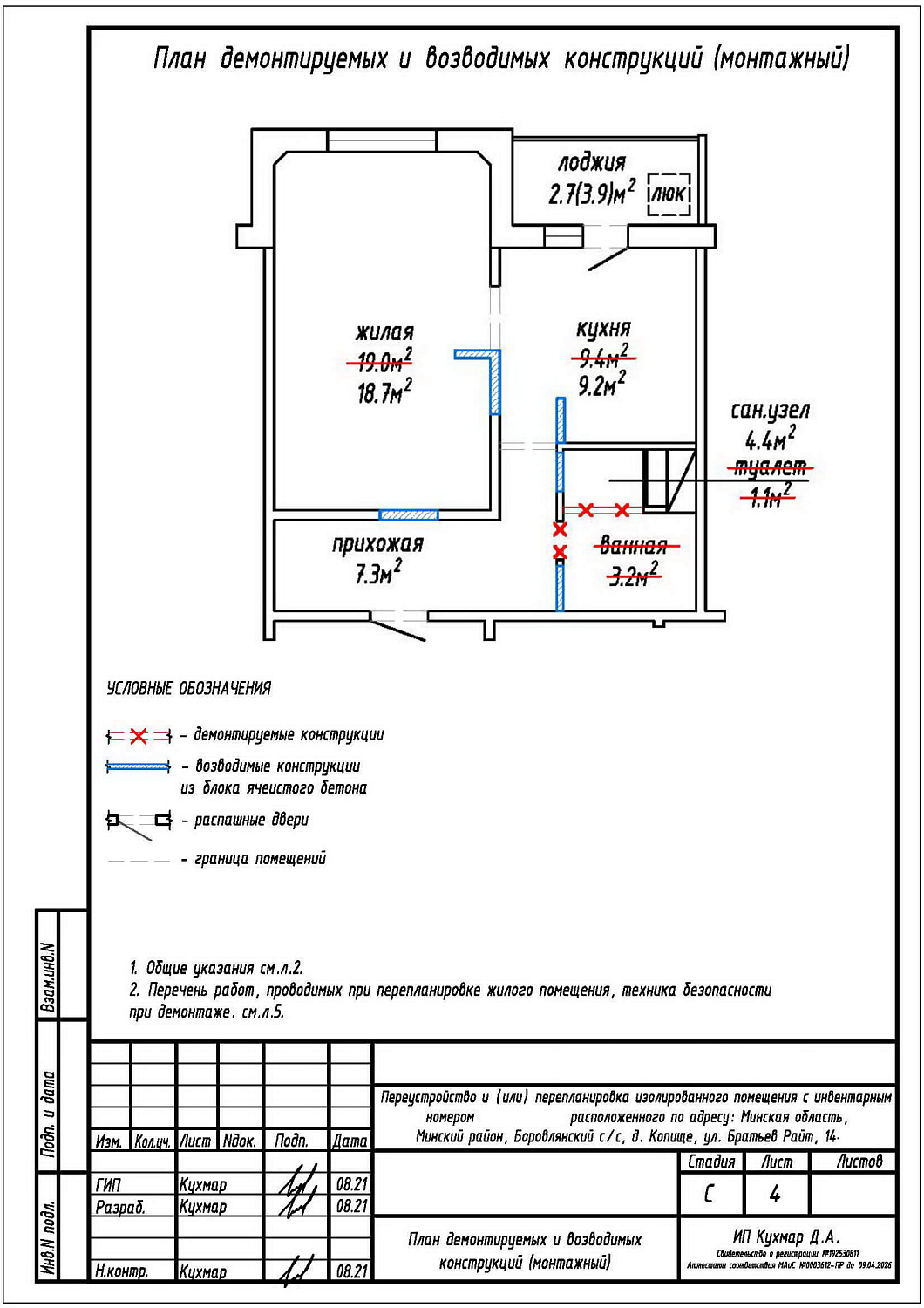
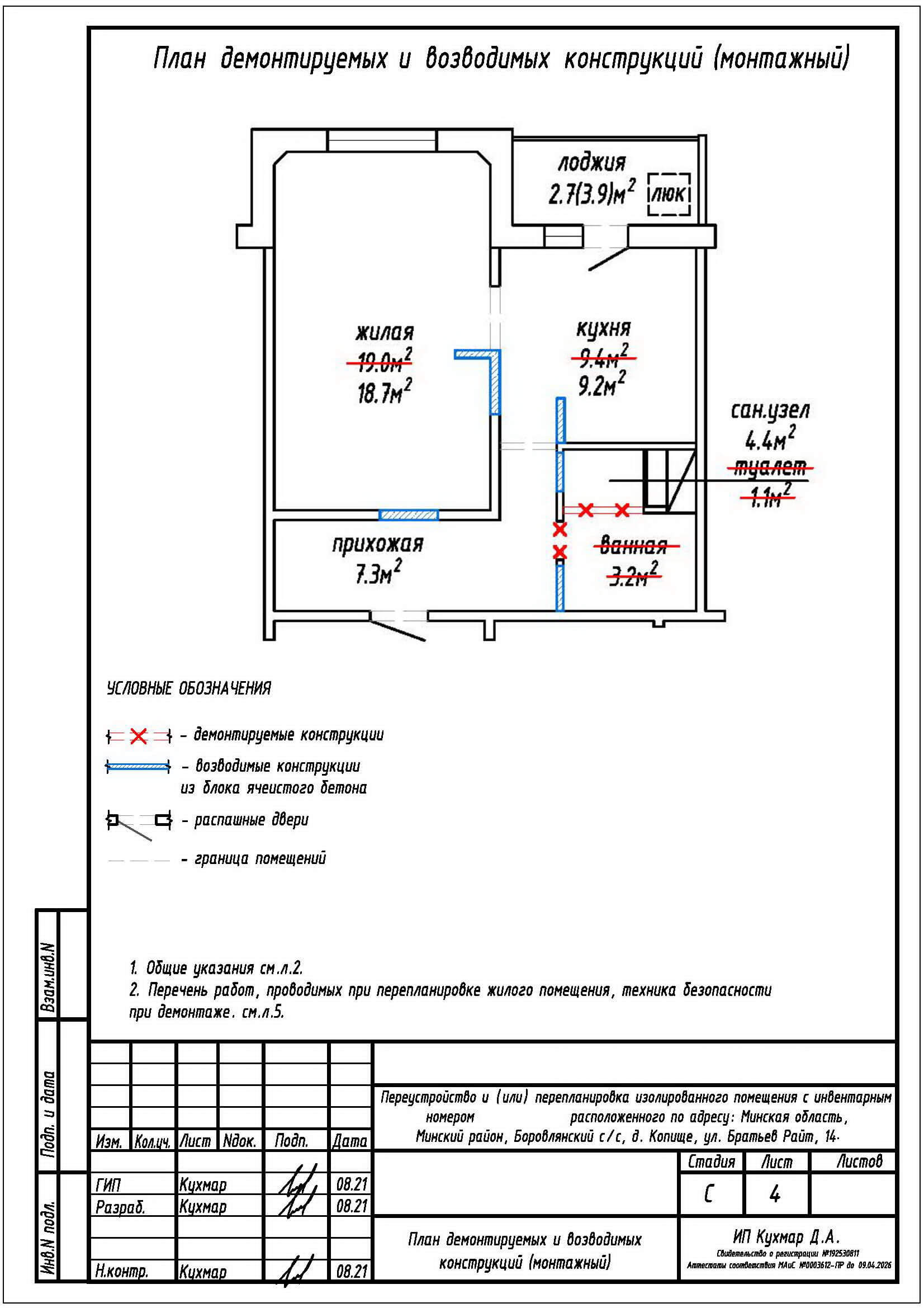
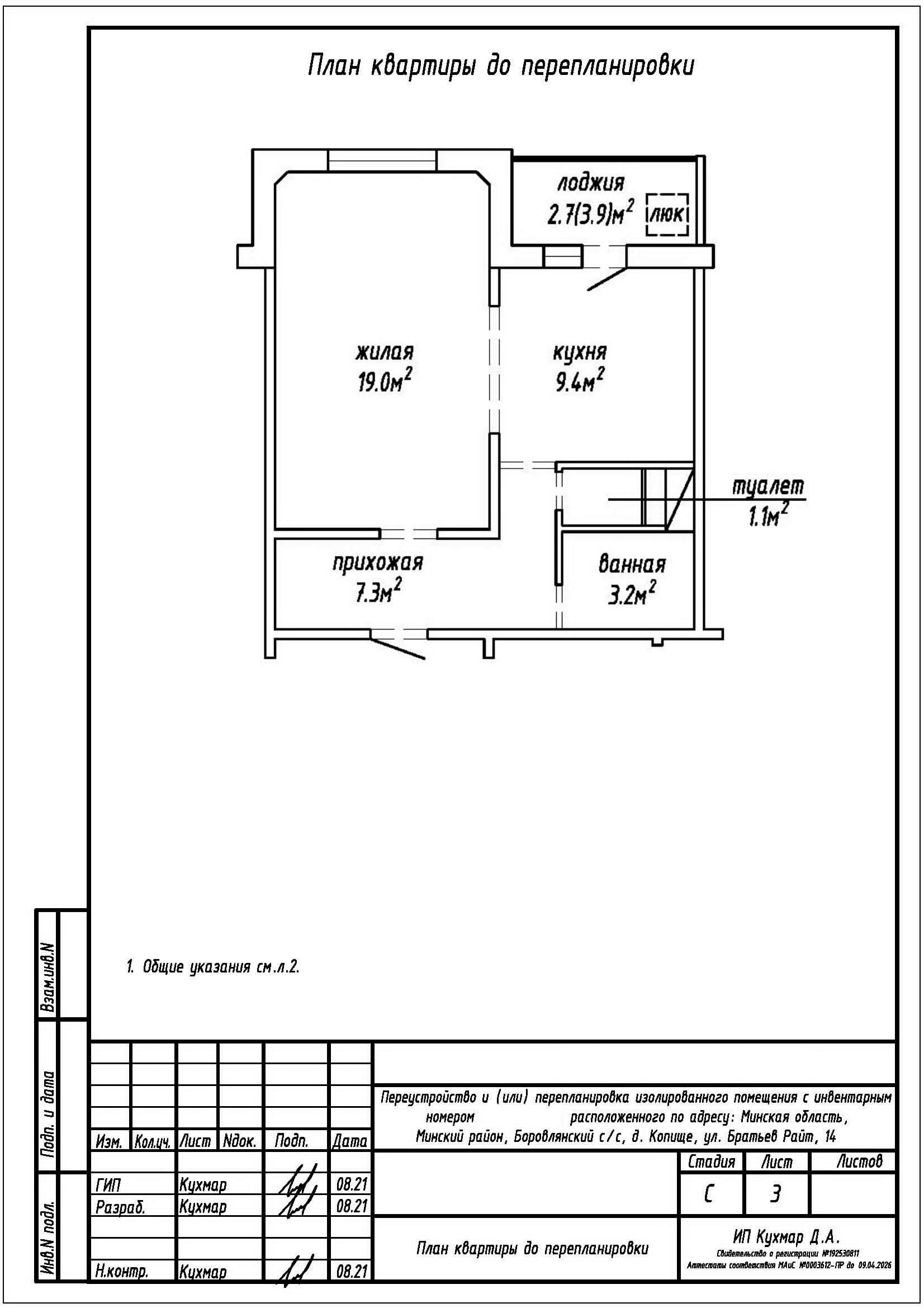
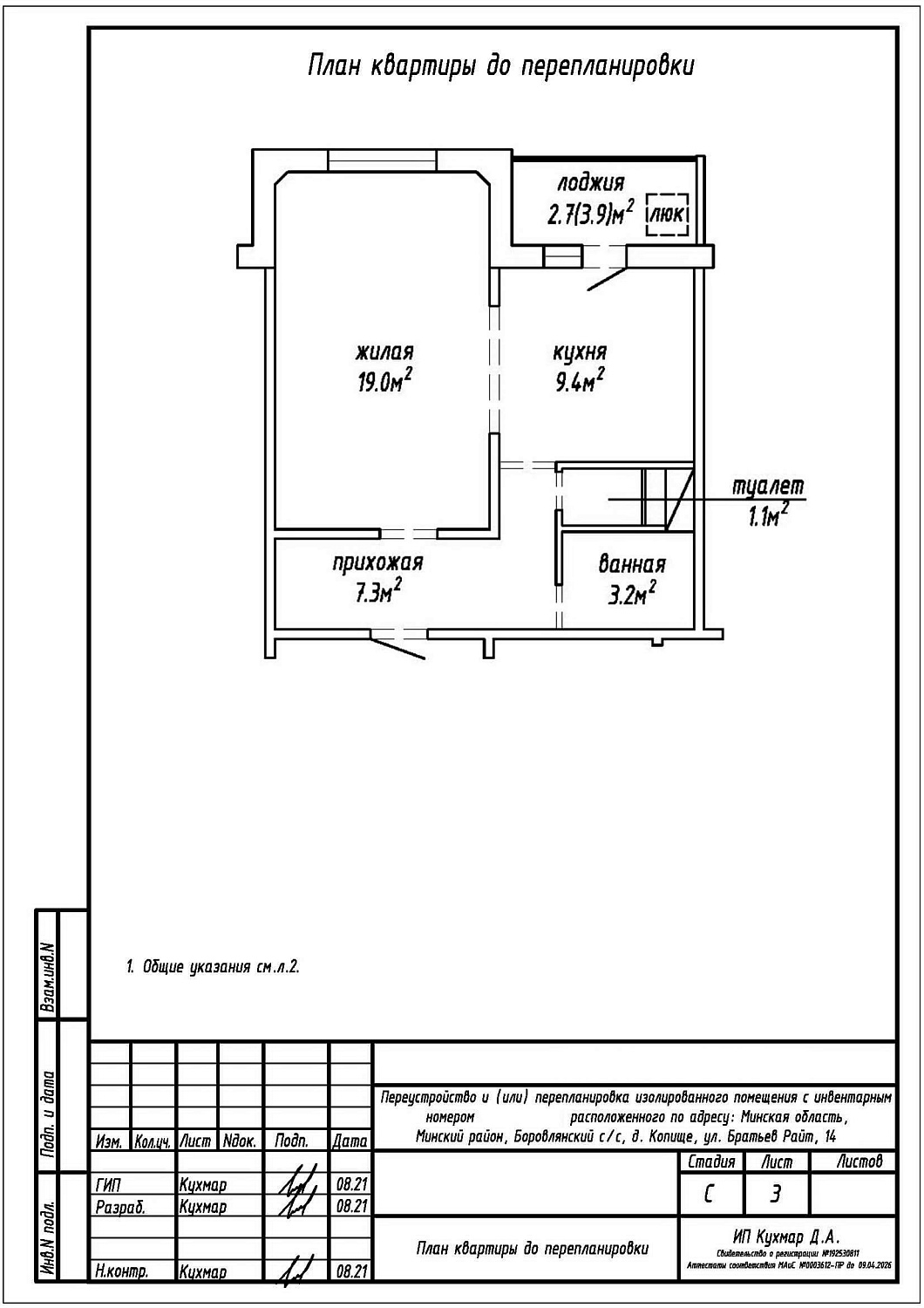
Перепланировка квартиры по ул. Братьев Райт, 14 в ЖК «Новая Боровая»
Пожелания заказчика:
- Объединение туалета и ванной в санузел;
- Закладка дверного проема между жилой и прихожей;
- Сужение дверного проема между жилой и кухней.
Нами были разработаны следующие разделы проектной документации для согласования в исполкоме:
- АС - архитектурно-строительные решения.
