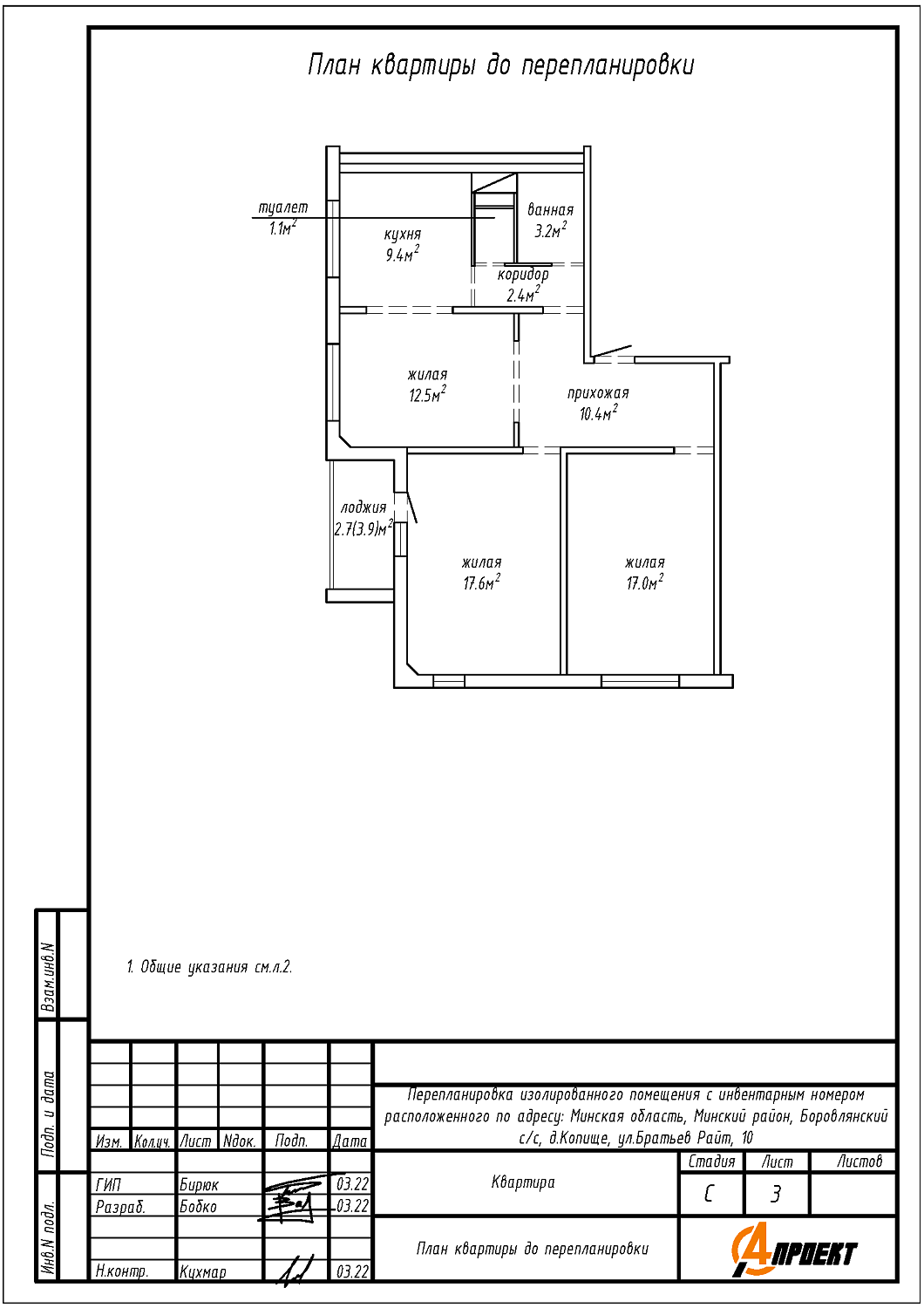
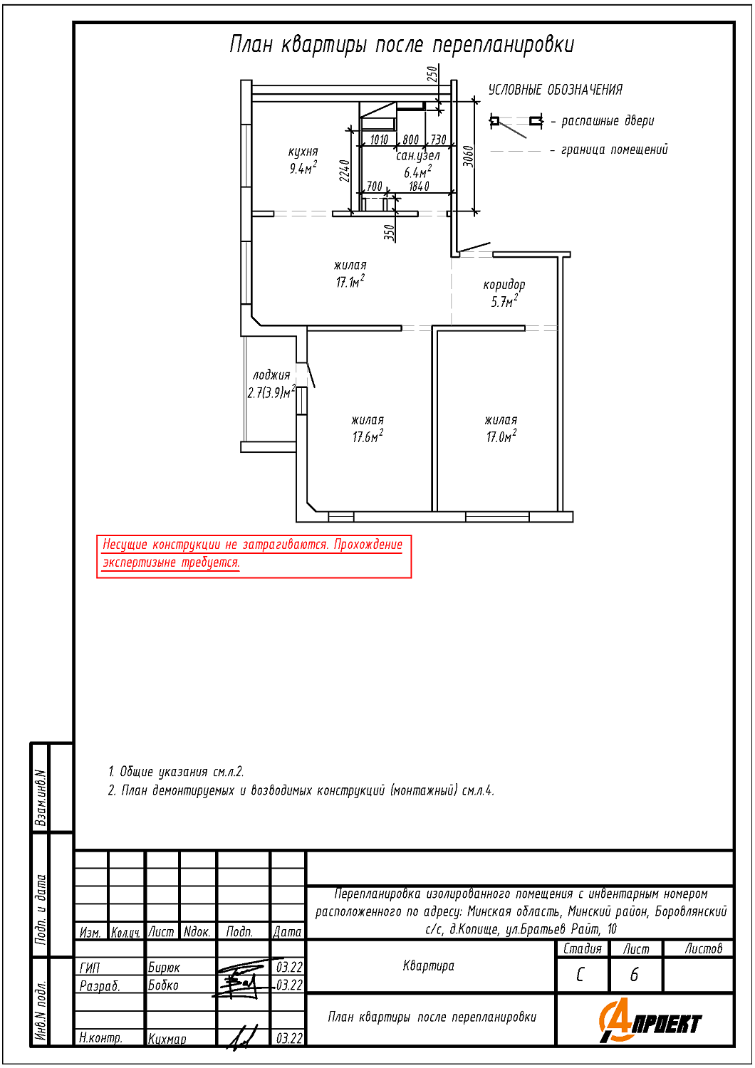
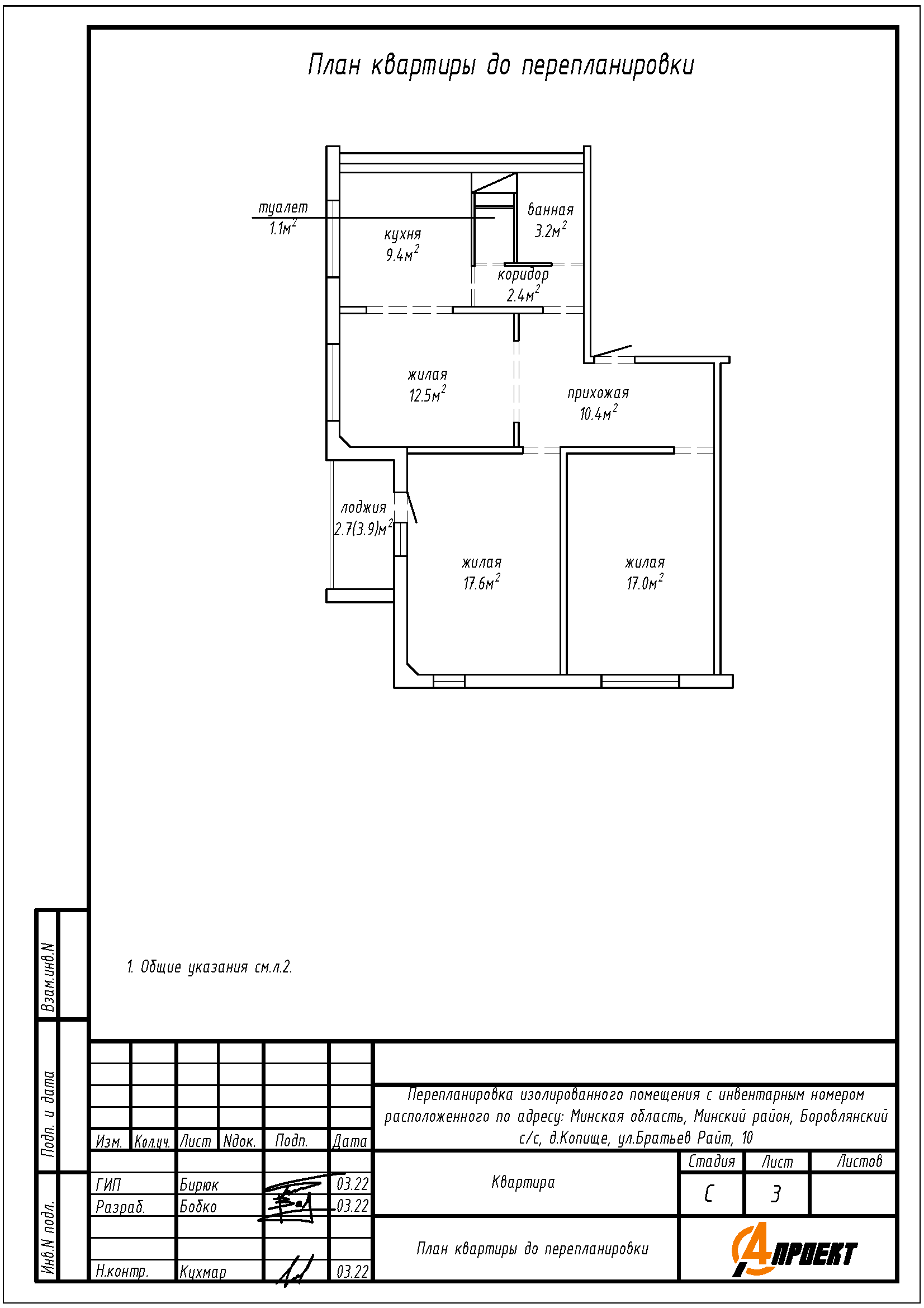
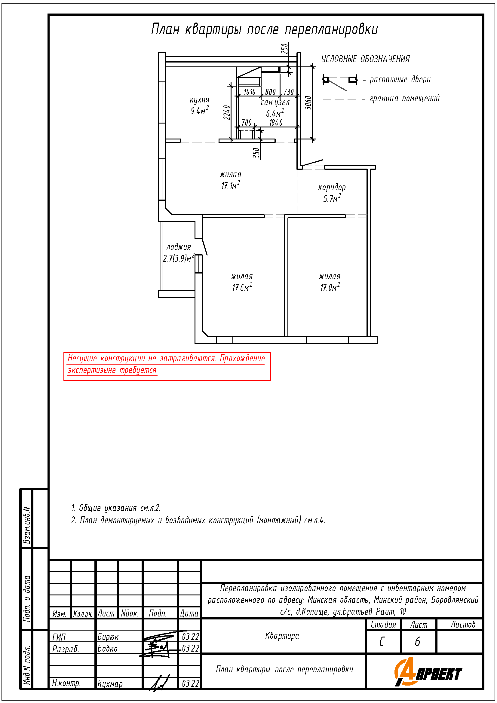
Перепланировка квартиры по ул. Братьев Райт, 10 в ЖК «Новая Боровая»
Пожелания заказчика:
- Объединение ванной и туалета в единый санузел;
- Демонтаж перегородок между жилой и коридором;
- Закладка дверного проёма между кухней и коридором;
- Устройство коридора на площади прихожей.
Нами были разработаны следующие разделы проектной документации для согласования в исполкоме:
- АС - архитектурно-строительные решения.
