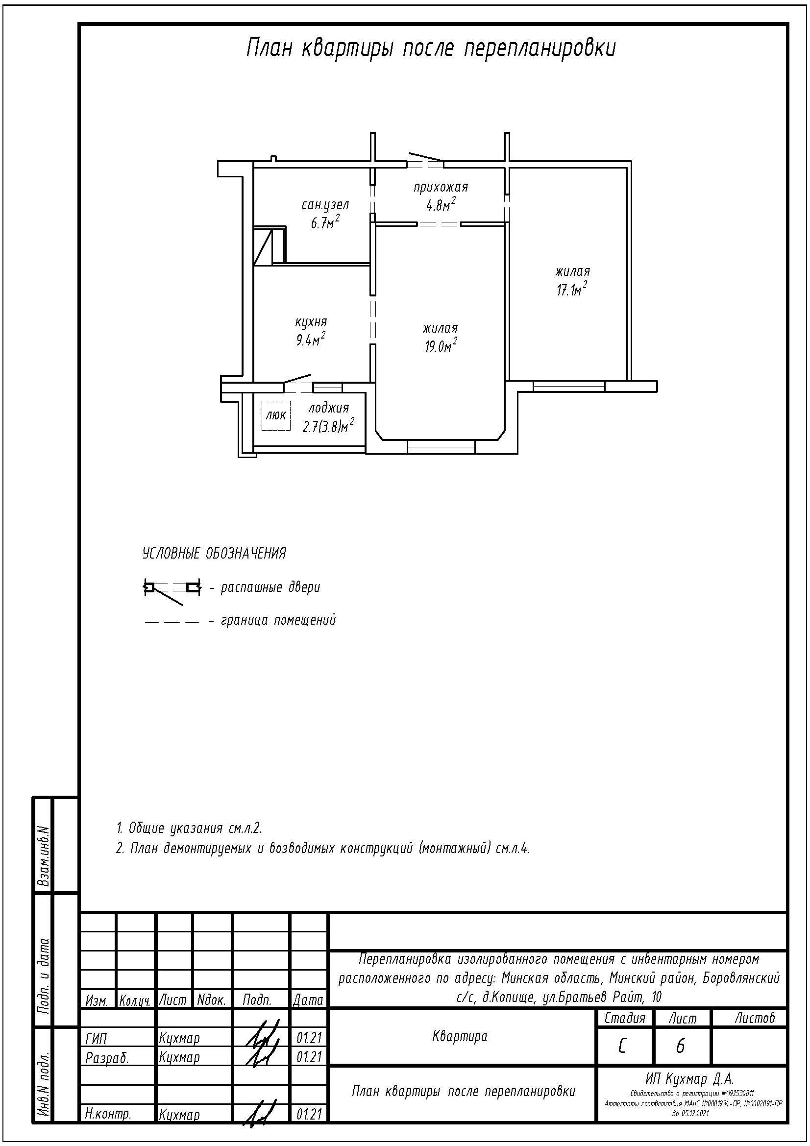
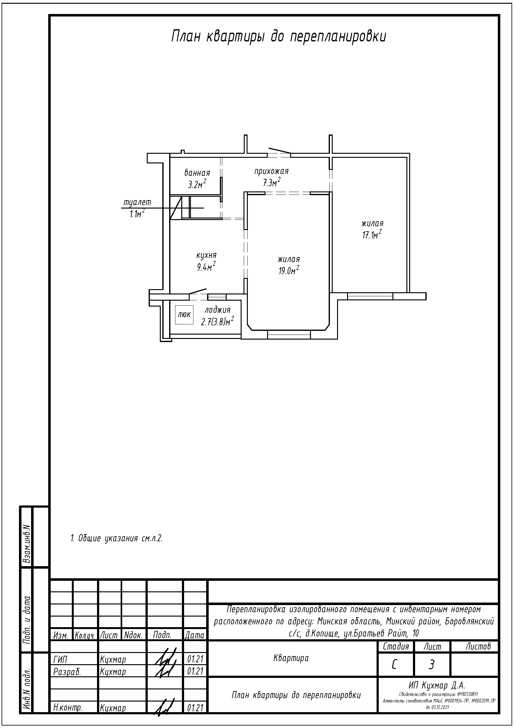
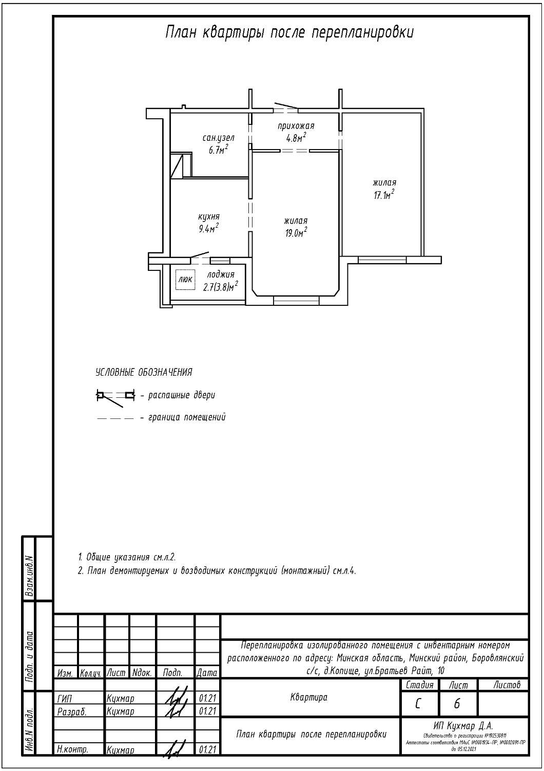
Перепланировка квартиры по ул. Братьев Райт, 10 в ЖК «Новая Боровая»
Пожелания заказчика:
- Объединение ванной и туалета в единый санузел;
- Увеличение площади санузла за счет прихожей;
- Сужение дверных проемов на кухню и жилые.
Нами были разработаны следующие разделы проектной документации для согласования в исполкоме:
- АС - архитектурно-строительные решения.
