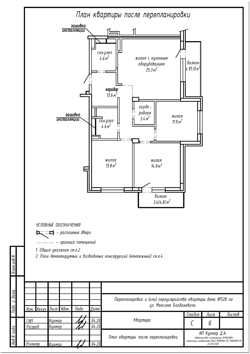
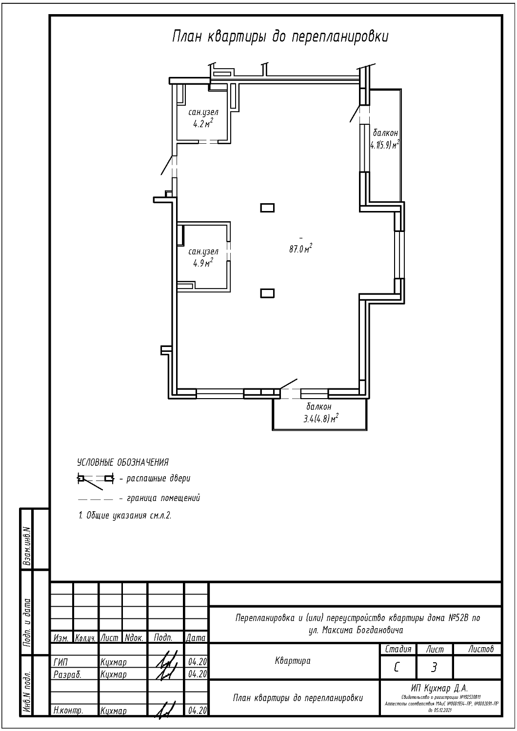
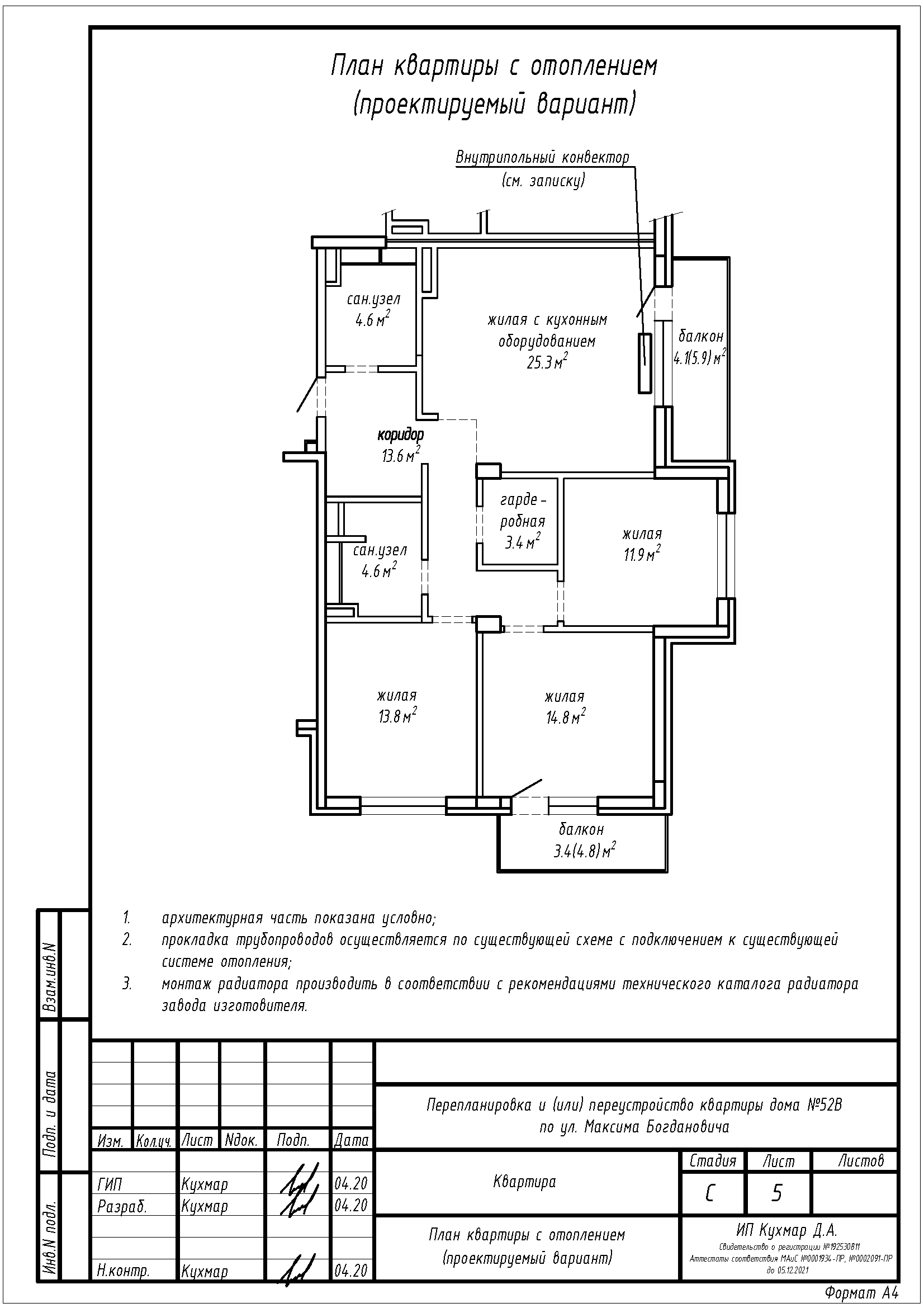
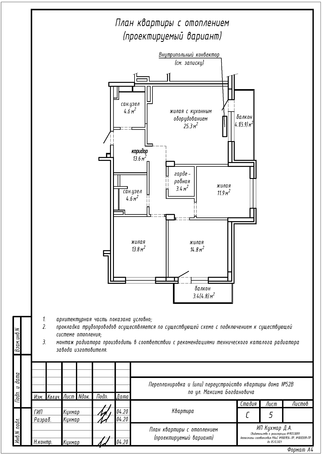
Перепланировка квартиры по ул. Максима Богдановича, 52Б в ЖК «Престижино»
Пожелания заказчика:
- Разделение общего помещения на жилую с кухонным оборудованием, три жилые, коридор, гардеробная;
- Уменьшение размеров санузлов;
- Устройство зашивок инсталляции в санузлах;
- Замена отопительного прибора.
Нами были разработаны следующие разделы проектной документации для согласования в исполкоме:
- АС - архитектурно-строительные решения;
- ОВ - отопление и вентиляция.
