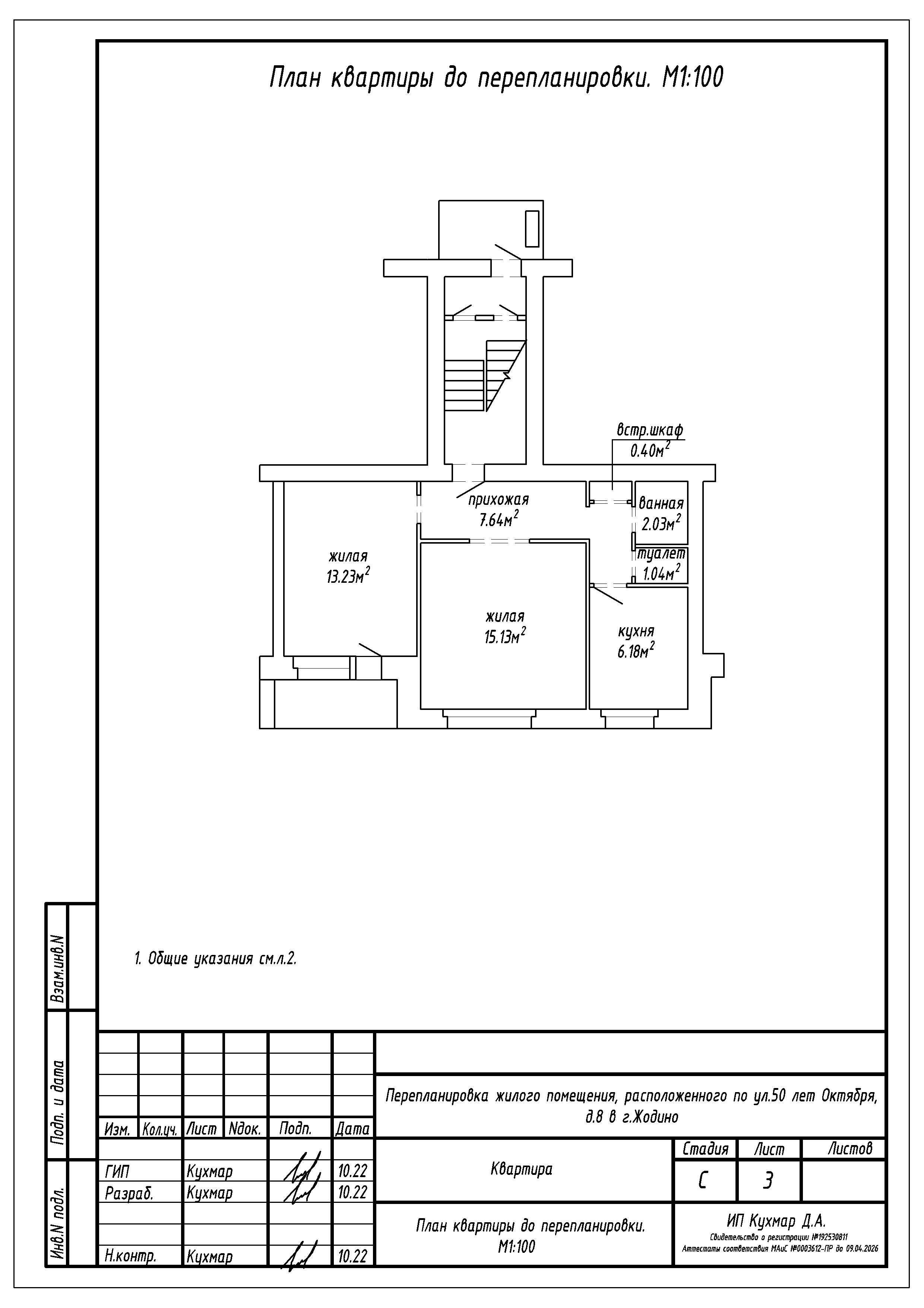
Пожелания заказчика:
- Закладка дверного проёма между прихожей и кухней;
- Устройство дверного проёма в перегородке между жилой и кухней с установкой дверного блока;
- Демонтаж встроенного шкафа;
- Объединение ванной и туалета в единый санузел;
- Увеличение площади санузла.
Нами были разработаны следующие разделы проектной документации для согласования в исполкоме:
- АС - архитектурно-строительные решения.
Состав рабочих чертежей основного комплекта раздела АС:
- План квартиры до перепланировки;
- План демонтируемых и возводимых конструкций (монтажный);
- План квартиры после перепланировки;
- Перечень работ, проводимых при перепланировке жилого помещения;
- План с маркировкой полов;
- Указания по устройству полов.
