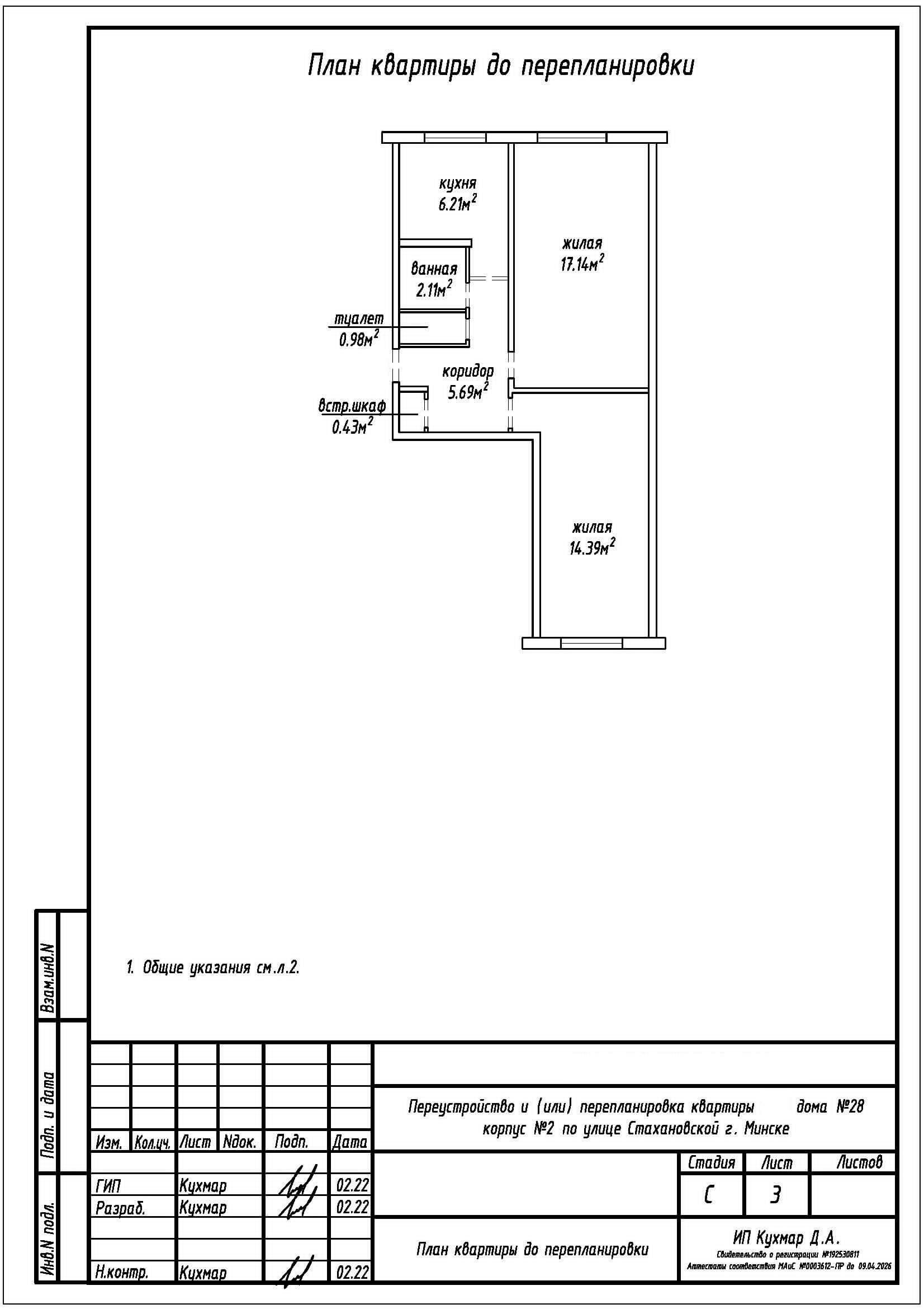
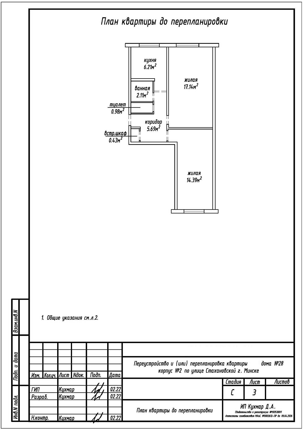
Перепланировка квартиры по ул. Стахановская, 28 корпус 2 в Минске
Пожелания заказчика:
- Объединение ванной и туалета в единый санузел;
- Устройство зашивки из ГКЛ на части площади туалета;
- Закладка дверного проема в перегородке между туалетом и коридором.
Нами были разработаны следующие разделы проектной документации для согласования в исполкоме:
- АС - архитектурно-строительные решения.
Состав рабочих чертежей основного комплекта раздела АС:
- План квартиры до перепланировки;
- План демонтируемых и возводимых конструкций (монтажный);
- План квартиры после перепланировки;
- Перечень работ, проводимых при перепланировке жилого помещения;
- Указания по устройству полов.
