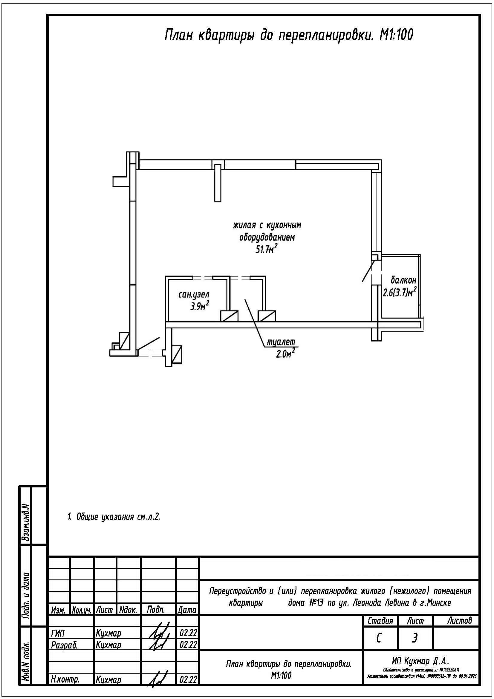
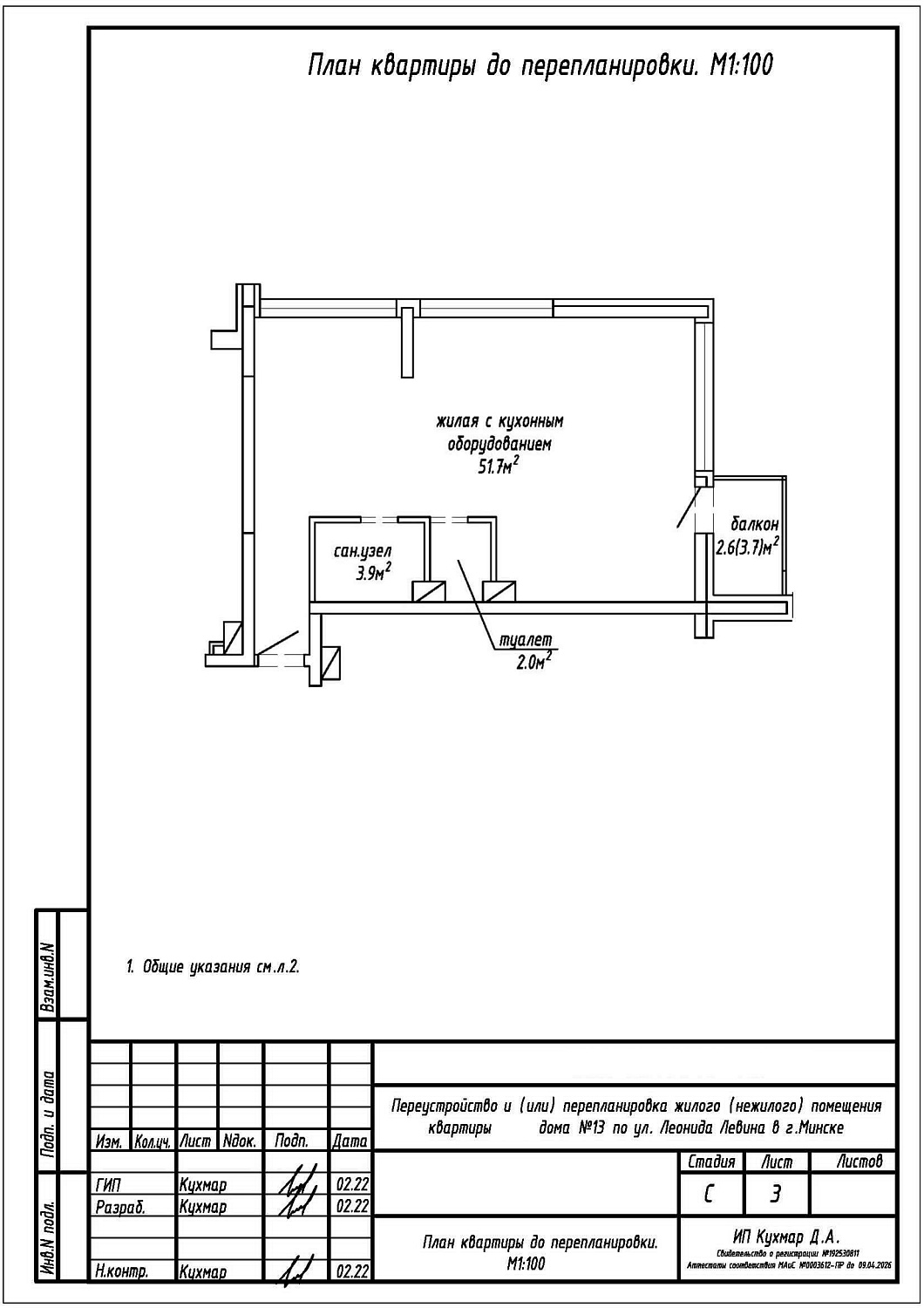
Перепланировка квартиры по ул. Леонида Левина, дом 13 в ЖК Минск Мир
Пожелания заказчика:
- Разделение общей жилой с кухонным оборудованием на жилую с кухонным оборудованием, две жилые и коридор;
- Устройство ванной на площади санузла;
- Изменение габаритов ванной;
- Увеличение площади туалета, но не более чем на 25%;
- Сужение дверного проема в стене между жилой с кухонным оборудованием и балконом.
Нами были разработаны следующие разделы проектной документации для согласования в исполкоме:
- АС - архитектурно-строительные решения;
Состав рабочих чертежей основного комплекта раздела АС:
- План квартиры до перепланировки;
- План демонтируемых и возводимых конструкций (монтажный);
- План квартиры после перепланировки;
- Перечень работ, проводимых при перепланировке жилого помещения;
- План с маркировкой полов;
- Указания по устройству полов.
