Перепланировка квартиры по проспекту Дзержинского, дом 19 в г.Минске
Пожелания заказчика:
- Устройство кухни, трёх жилых комнат, кладовой и коридора на части площади жилой с кухонным оборудованием;
- Устройство санузла на площади существующего туалета;
- Изменение габаритов санузла.
Нами были разработаны следующие разделы проектной документации для согласования в исполкоме:
- АС - архитектурно-строительные решения.
Состав рабочих чертежей основного комплекта раздела АС:
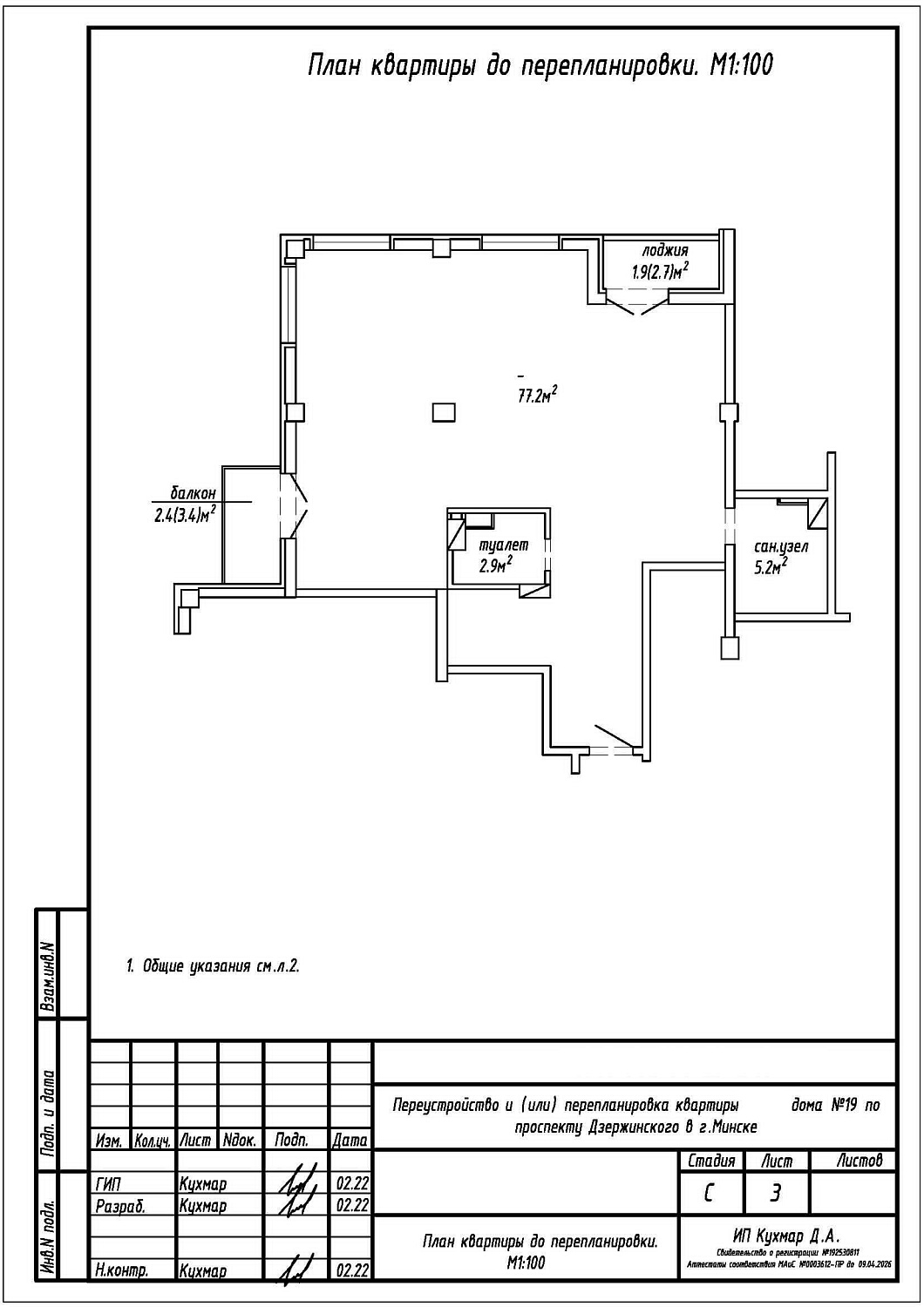
- План квартиры до перепланировки;
- План демонтируемых и возводимых конструкций (монтажный);
- План квартиры после перепланировки;
- Перечень работ, проводимых при перепланировке жилого помещения;
- Экспликация полов;
- Указания по устройству полов.
