Перепланировка квартиры по улице Курсанта Гвишиани, 7 в г. Минске в ЖК «Мармелад»
Пожелания заказчика:
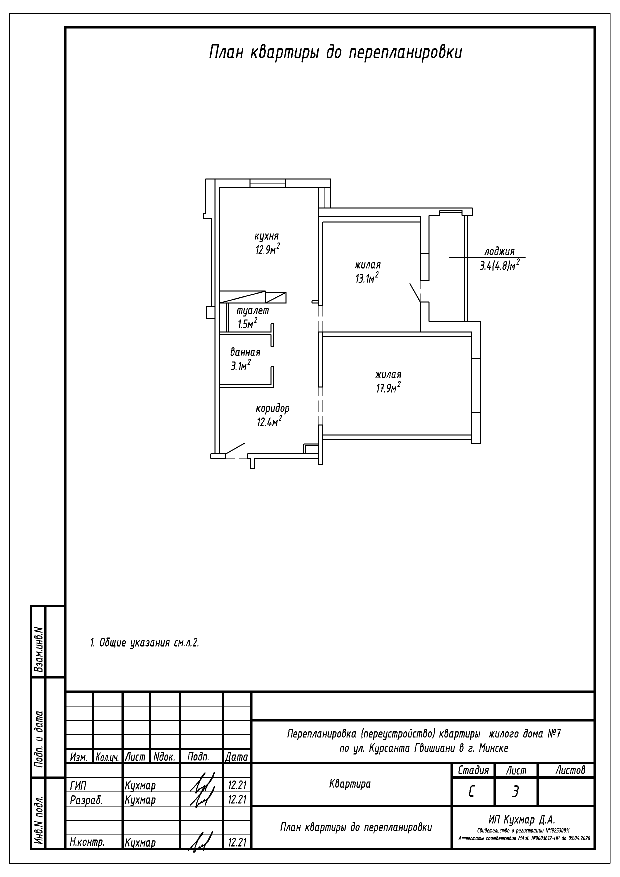
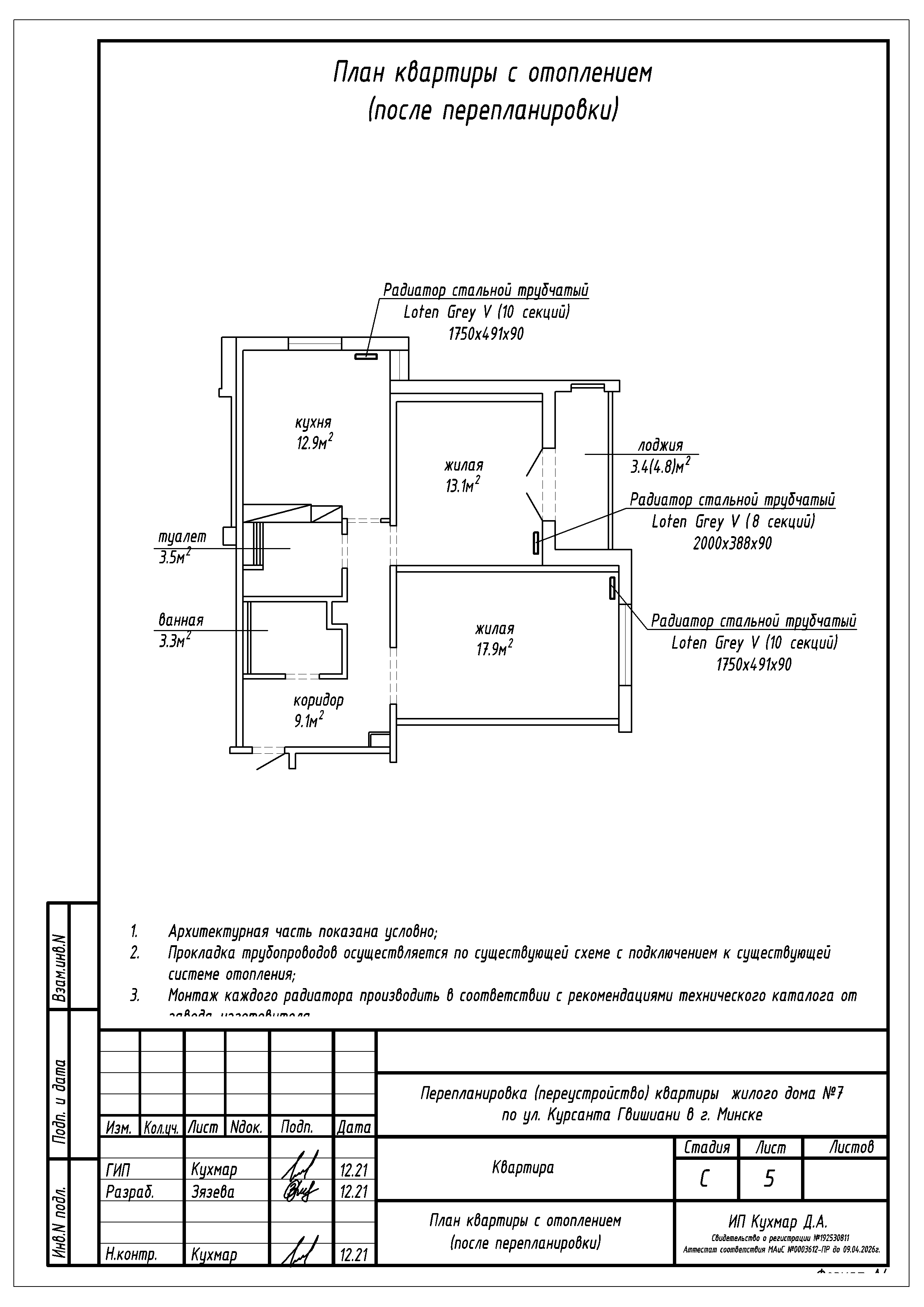
- Увеличение площади ванной и туалета за счёт площади коридора, но не более чем на 25%;
- Смена направления открывания входной двери;
- Устройство зашивок из ГКЛ на площади туалета и ванной;
- Демонтаж подоконной части в стене между лоджией с последующим устройством дверного блока;
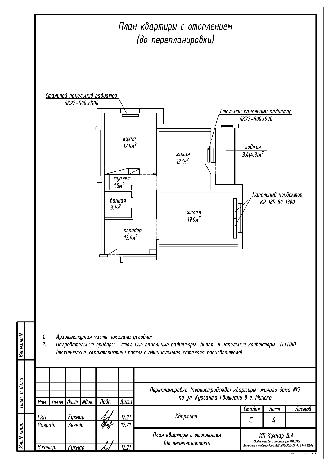
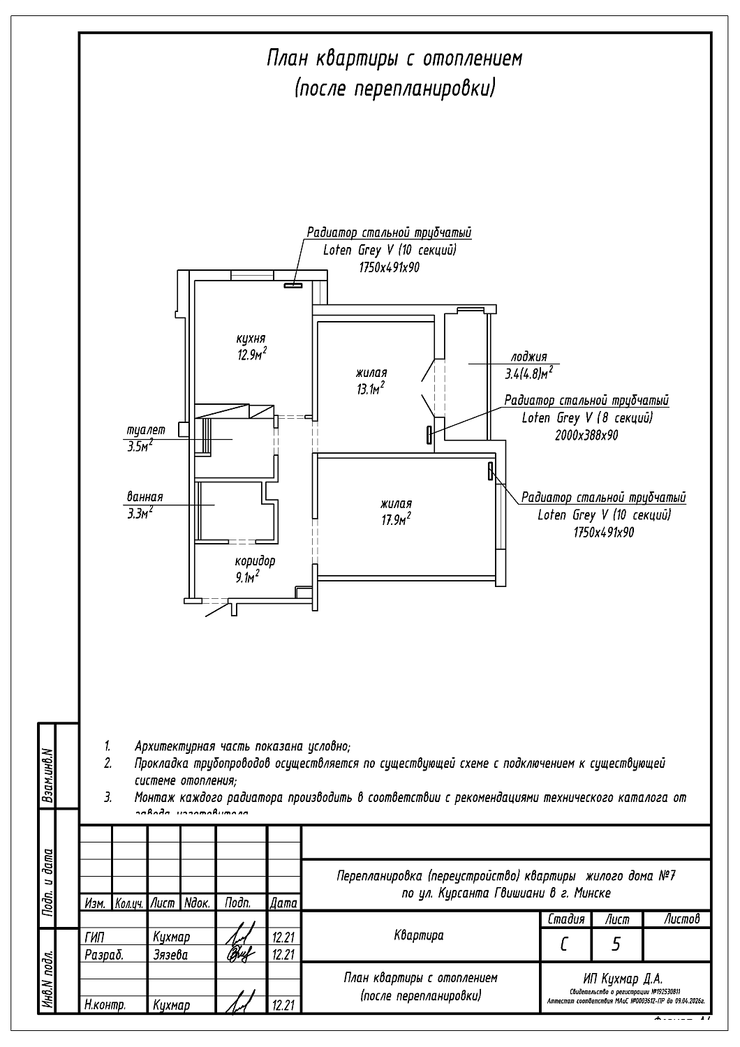
- Перенос и замена нагревательных приборов.
Нами были разработаны следующие разделы проектной документации для согласования в исполкоме:
- АС - архитектурно-строительные решения (перегородки).
- ОВ - отопление и вентиляция.
Состав рабочих чертежей основного комплекта раздела АС:
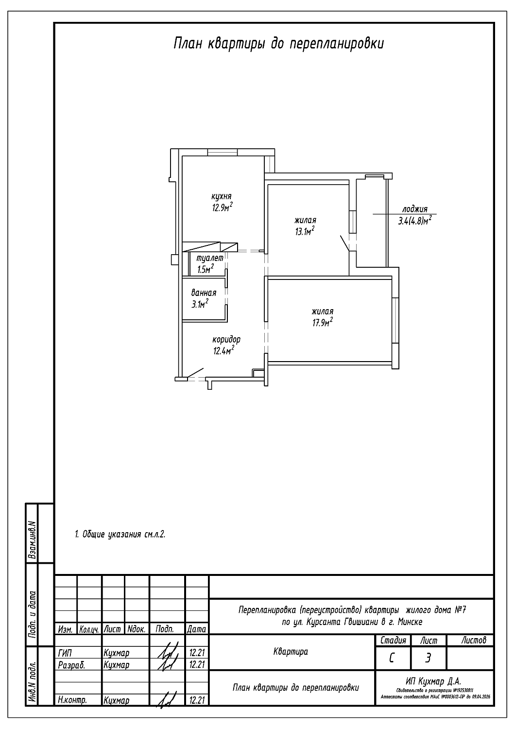
- План квартиры до перепланировки;
- План демонтируемых и возводимых конструкций (монтажный);
- План квартиры после перепланировки;
- Перечень работ, проводимых при перепланировке жилого помещения;
- Указания по устройству полов.
Состав рабочих чертежей основного комплекта раздела ОВ:
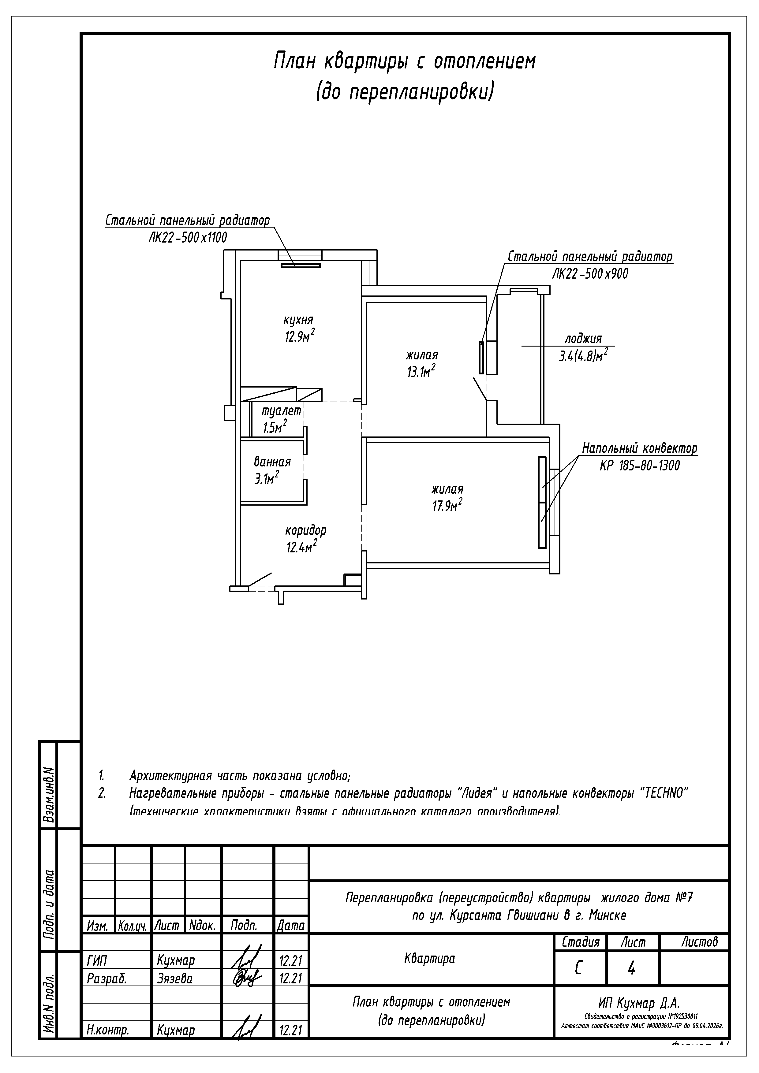
- План квартиры с отоплением (существующий вариант);
- План квартиры с отоплением (проектируемый вариант).
