Перепланировка квартиры по ул. Кижеватова, 3Б в Минске (ЖК Минск Мир)
Проектом предусматриваются следующие работы:
- Разделение общей жилой с кухонным оборудованием на жилую с кухонным оборудованием и жилую;
- Смена направления открывания входной двери;
- Увеличение площади санузла, но не более чем на 25%.
Нами были разработаны следующие разделы проектной документации для согласования в исполкоме:
- АС - архитектурно-строительные решения.
Состав рабочих чертежей основного комплекта раздела АС:
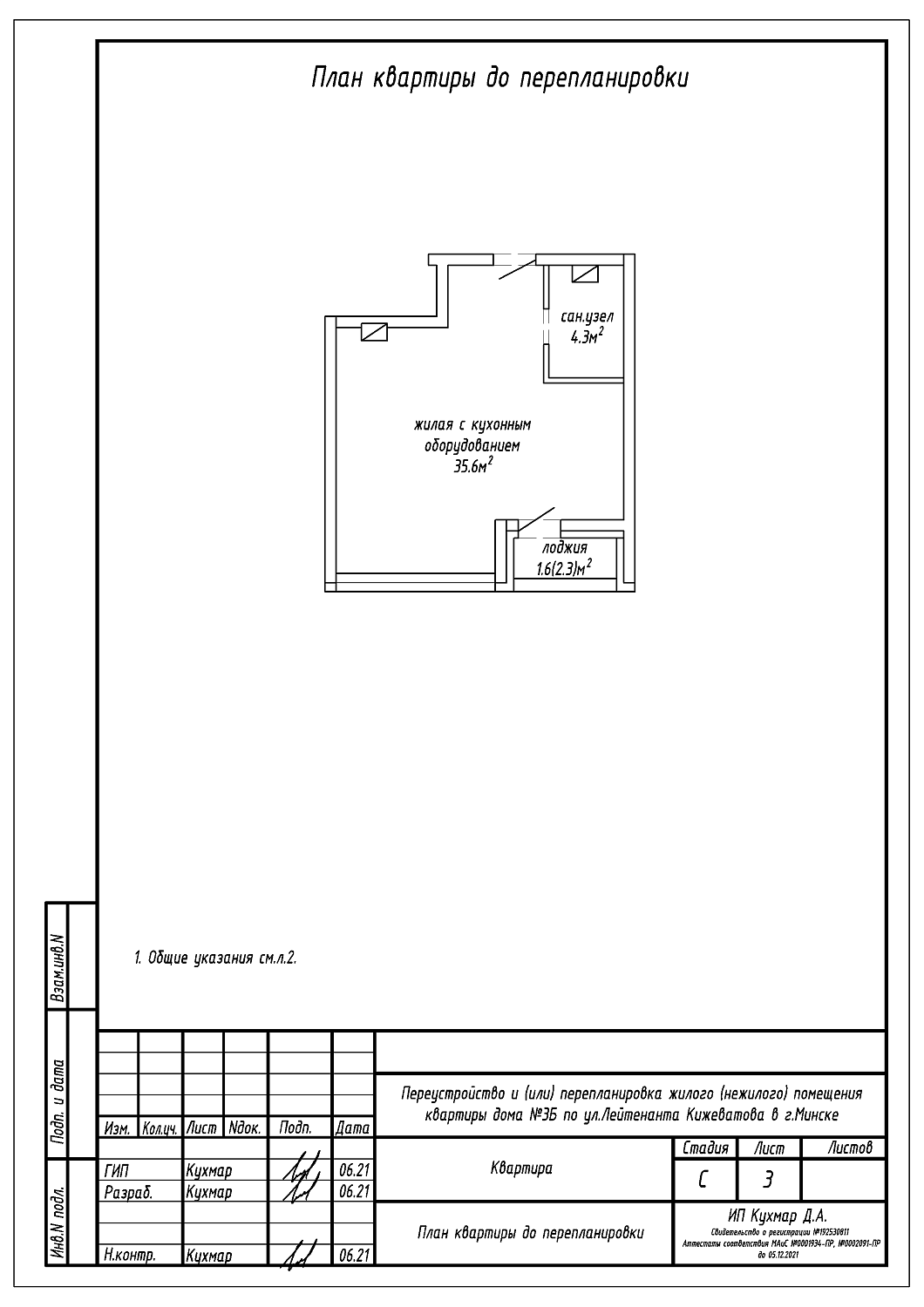
- План квартиры до перепланировки;
- План демонтируемых и возводимых конструкций (монтажный);
- План квартиры после перепланировки;
- Деталь устройства пола из керамической плитки в санузлах;
- Перечень работ, проводимых при перепланировке жилого помещения;
- Указания по устройству полов.
