Перепланировка квартиры по ул. Богдановича, 52Б
Пожелания заказчика:
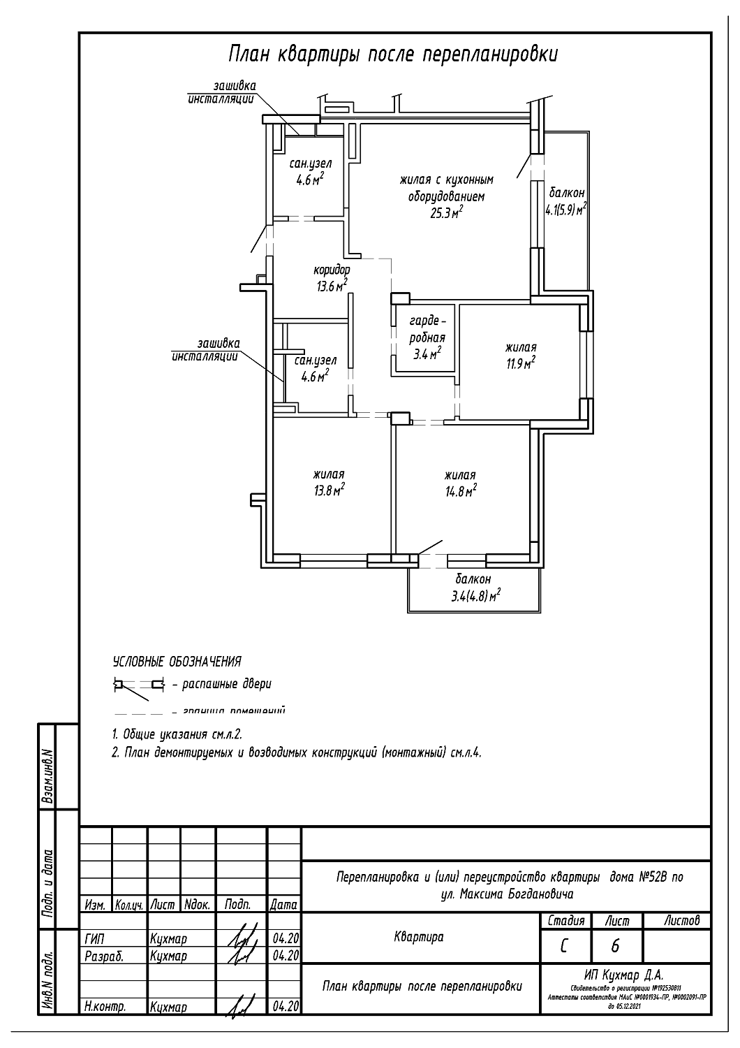
- Разделение общего помещения на жилую с кухонным оборудованием, три жилые, коридор, гардеробная;
- Уменьшение размеров санузлов;
- Устройство зашивок инсталляции в санузлах;
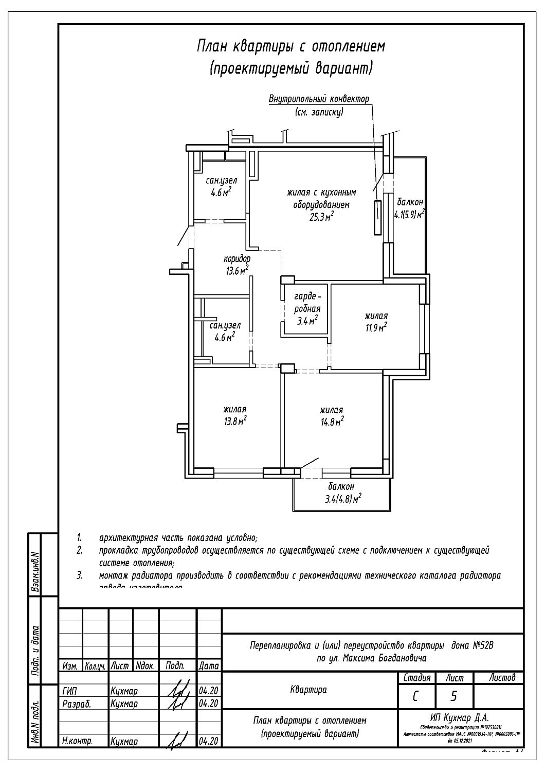
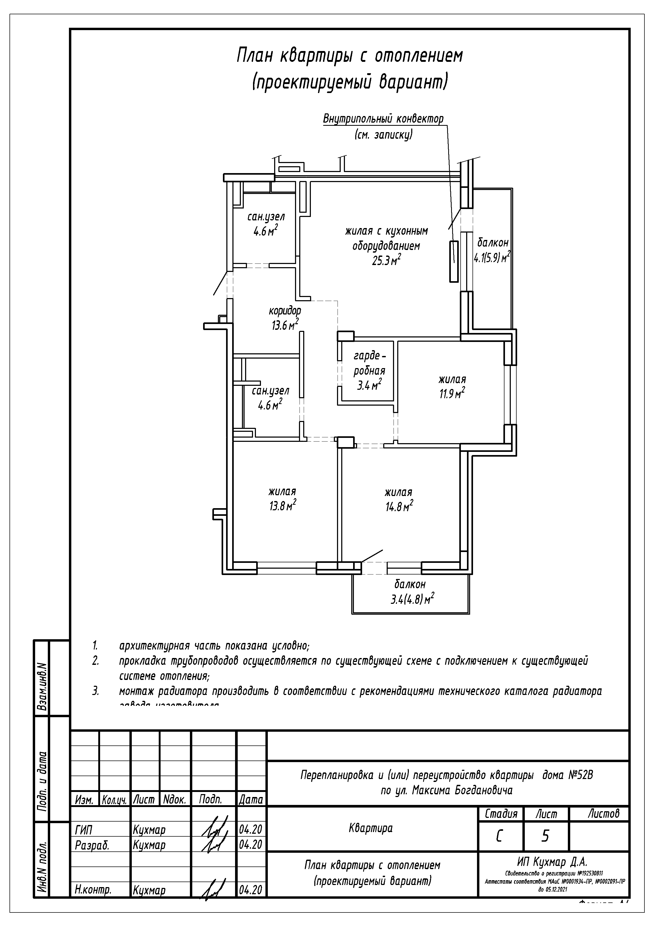
- Замена отопительного прибора.
Нами были разработаны следующие разделы проектной документации для согласования в исполкоме:
- АС - архитектурно-строительные решения (перегородки);
- ОВ - отопление и вентиляция (батареи).
Состав рабочих чертежей основного комплекта раздела АС:
- План квартиры до перепланировки;
- План демонтируемых и возводимых конструкций (монтажный);
- План квартиры после перепланировки;
- Перечень работ, проводимых при перепланировке жилого помещения;
- План с маркировкой полов;
- Указания по устройству полов.
Состав рабочих чертежей основного комплекта раздела ОВ:
- План квартиры с отоплением (существующий вариант);
- План квартиры с отоплением (проектируемый вариант);
- Принципиальная схема подсоединения существующих и проектируемых отопительных приборов;
- Принципиальная схема распределителя.
