Перепланировка квартиры по ул. Авиационная, 49 ЖК «Новая Боровая»
Проектом предусматриваются следующие работы:
- Объединение туалета и ванной в единый санузел;
- Увеличение площади санузла за счет прихожей;
- Уменьшение дверного проёма между жилой и кухней;
- Устройство гардеробной на площади прихожей.
Нами были разработаны следующие разделы проектной документации для согласования в исполкоме:
- АС- архитектурно-строительные решения
Состав рабочих чертежей основного комплекта раздела АС:
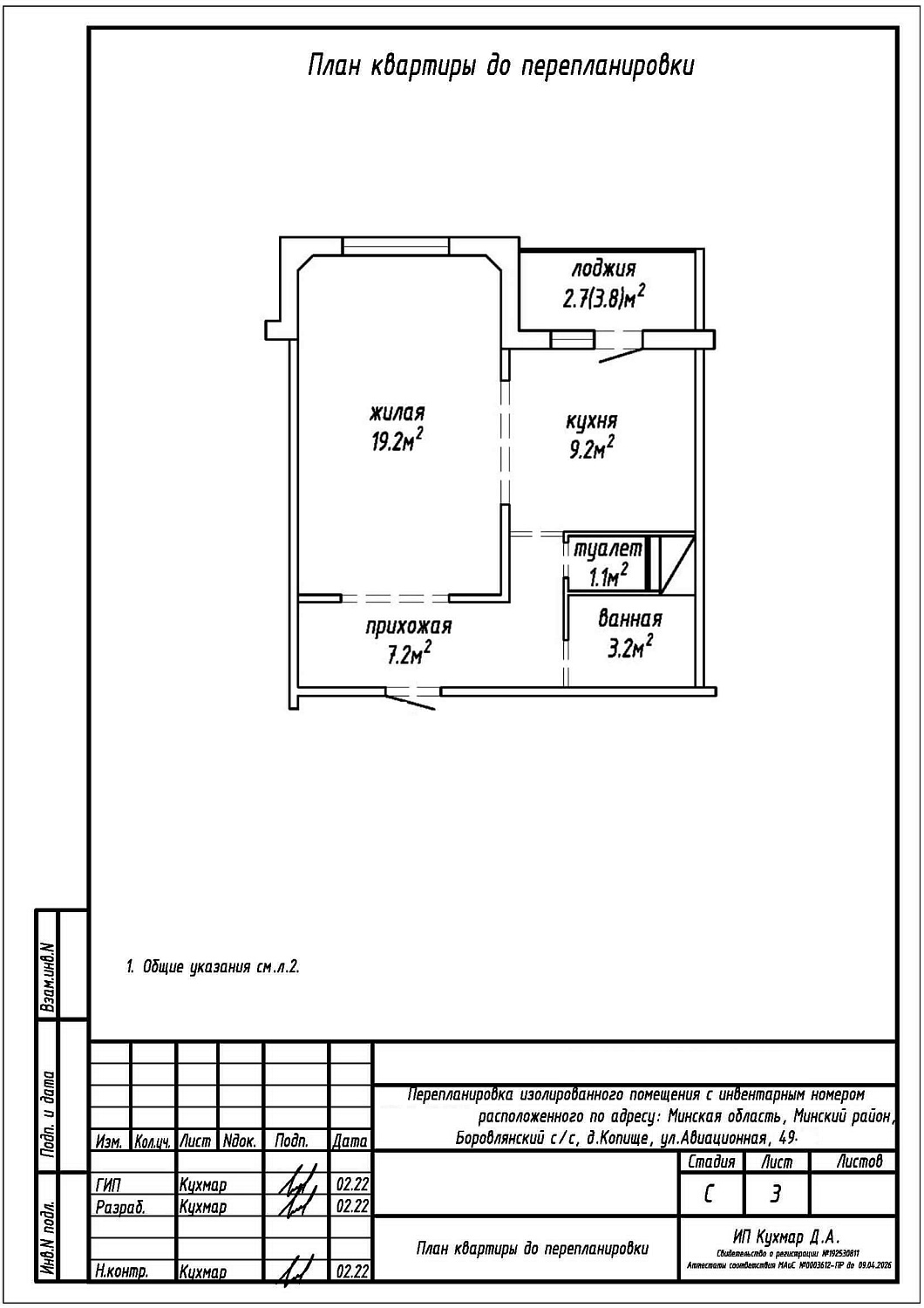
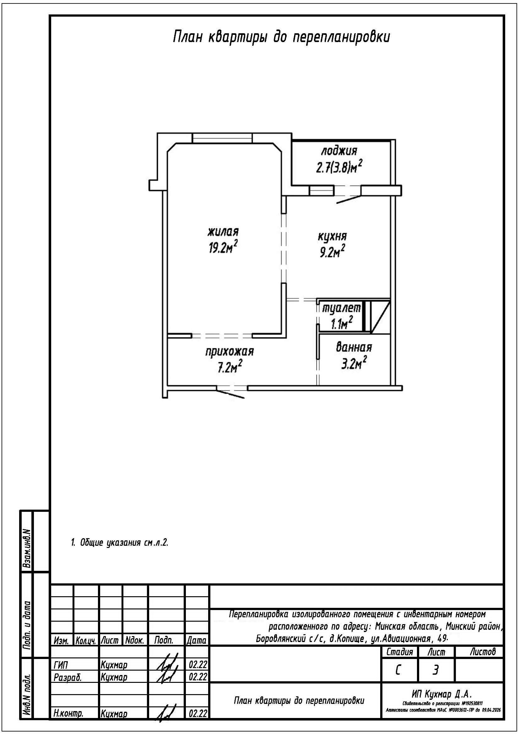
- План квартиры до перепланировки;
- План демонтируемых и возводимых конструкций (монтажный);
- План квартиры после перепланировки;
- Перечень работ, проводимых при перепланировке жилого помещения;
- Указания по устройству полов.
