Проектом предусматриваются следующие работы:
- Смещение дверного проёма между санузлом и прихожей;
- Закладка дверного проёма между прихожей и жилой;
- Демонтаж части стен между жилым и балконом с последующим устройством дверного блока;
- Увеличение площади санузла за счёт площади прихожей;
- Устройство дверного проёма между жилой и жилой с кухонным оборудованием;
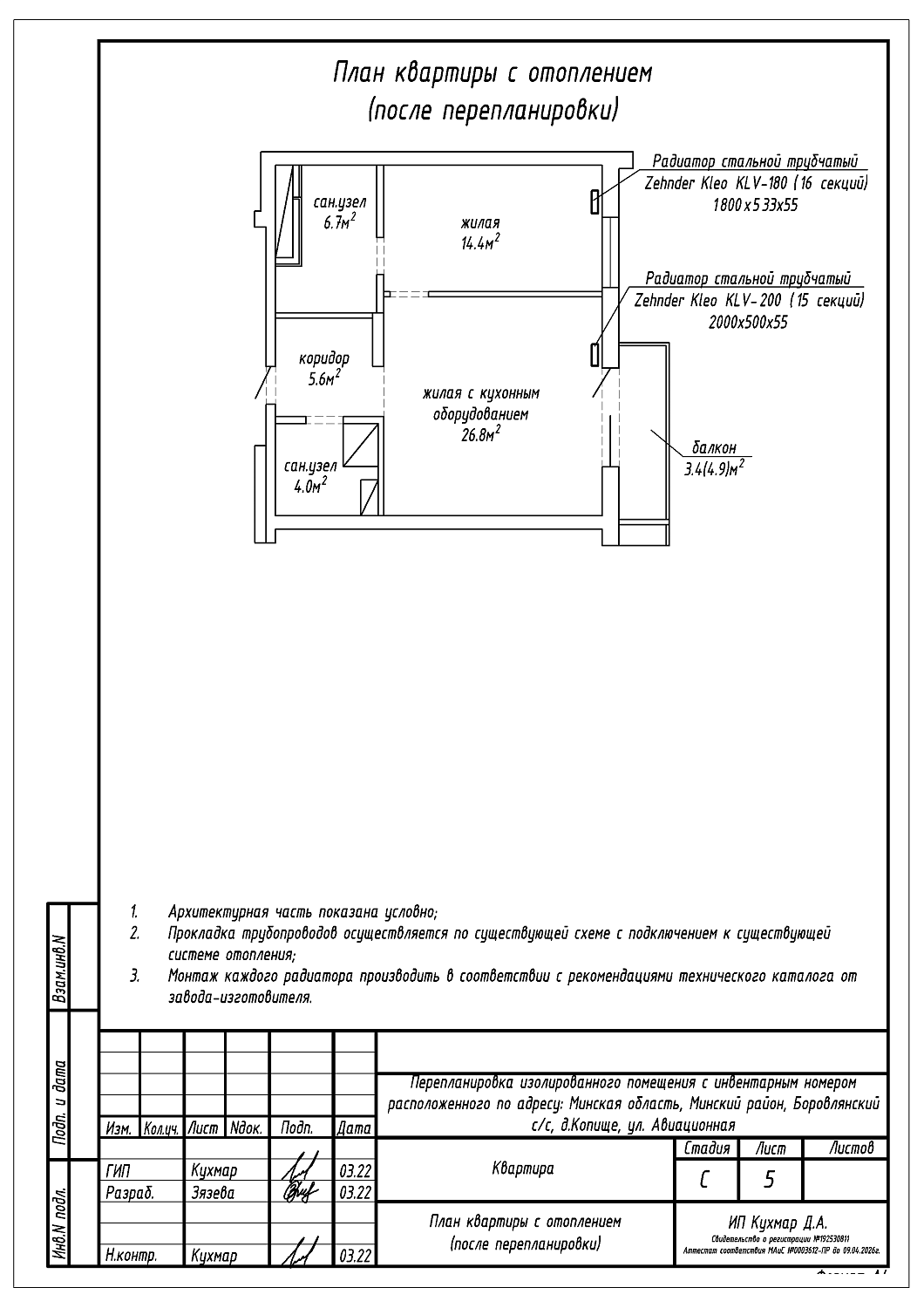
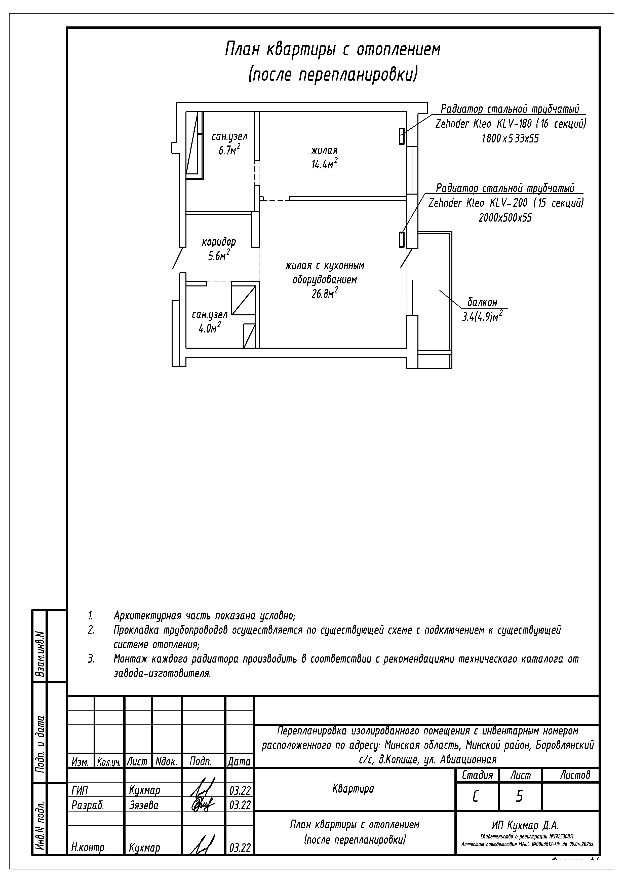
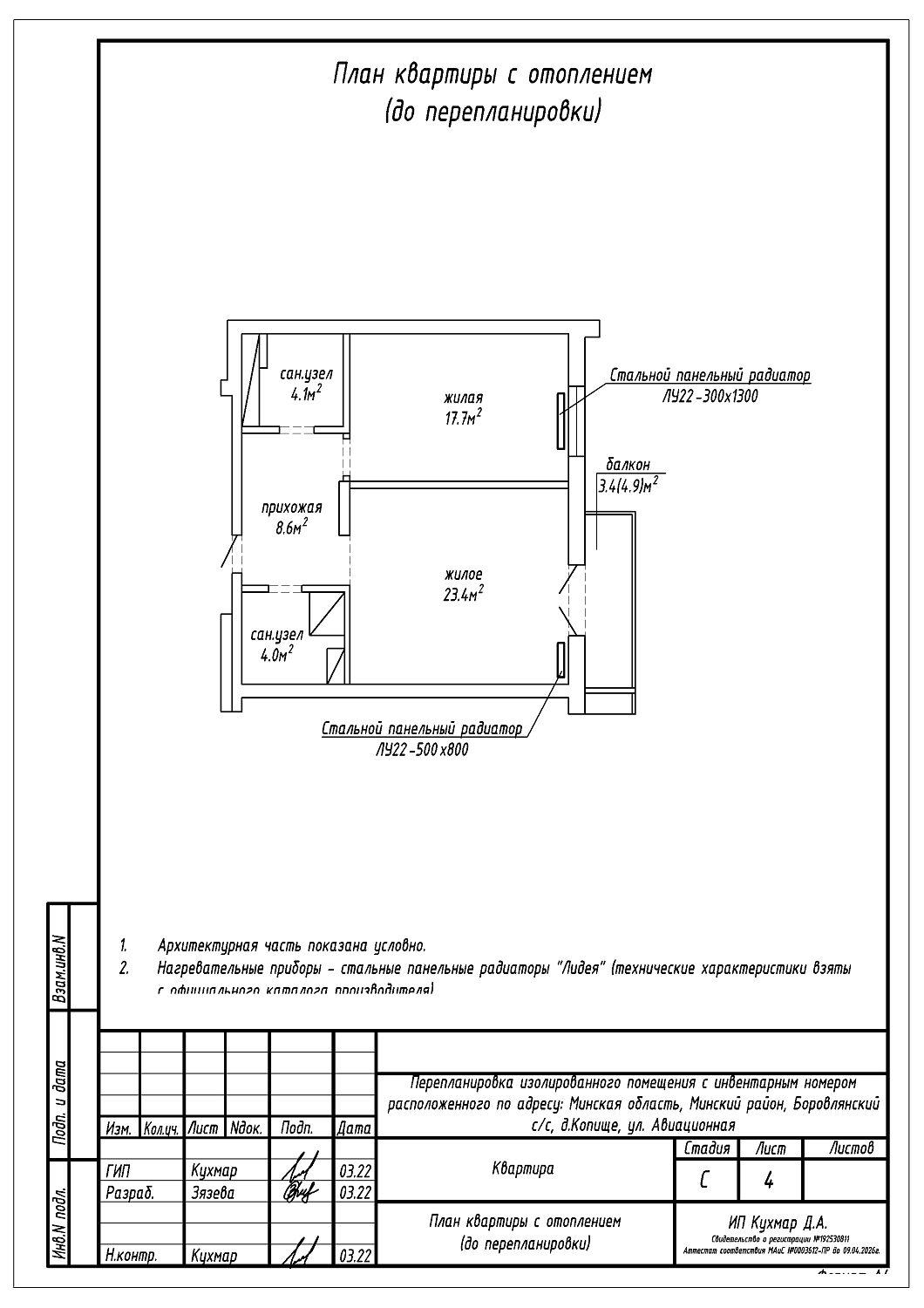
- Перенос и замена отопительных приборов..
Нами были разработаны следующие разделы проектной документации для согласования в исполкоме:
- АС- архитектурно-строительные решения
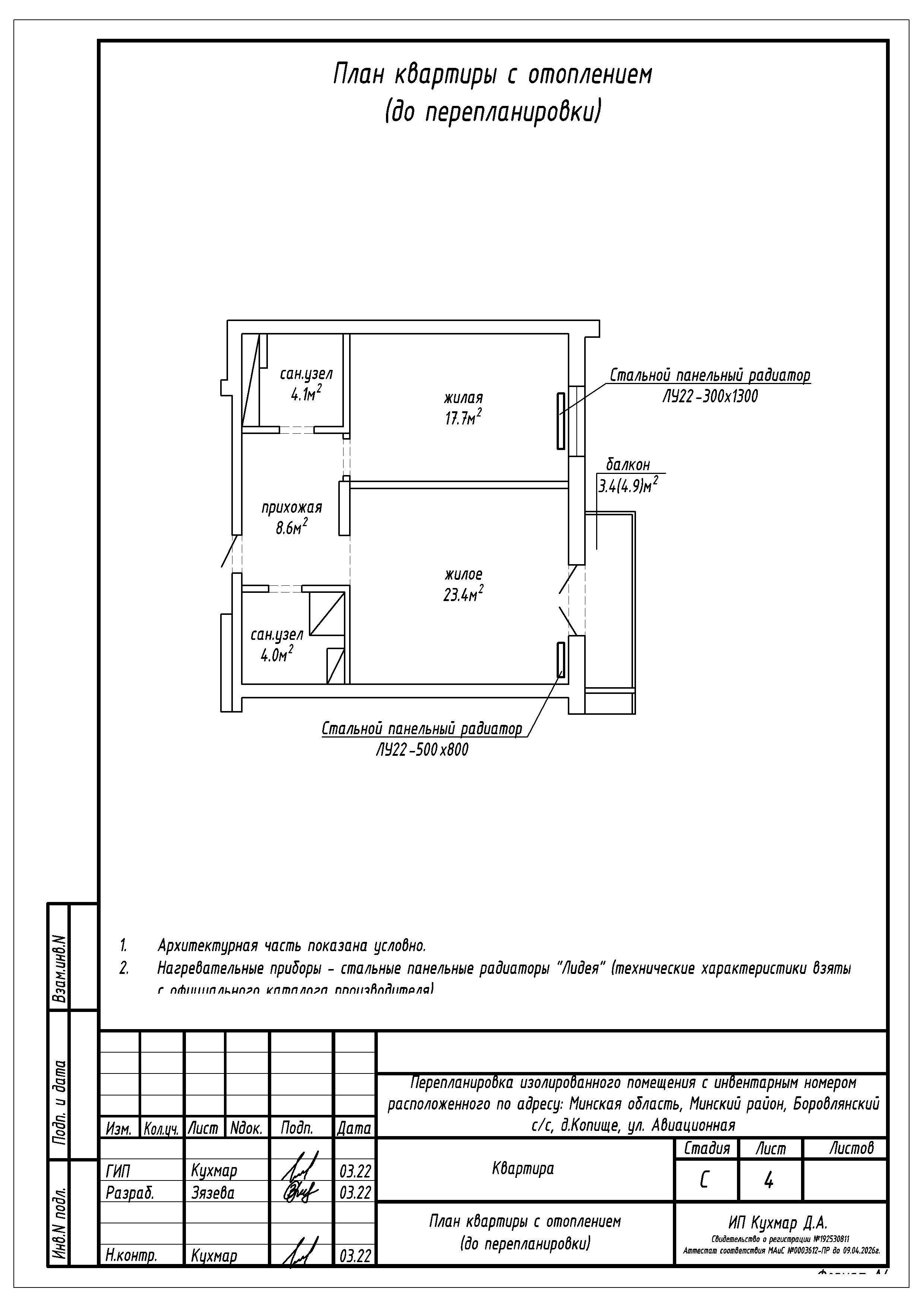
- ОВ - отопление и вентиляция.
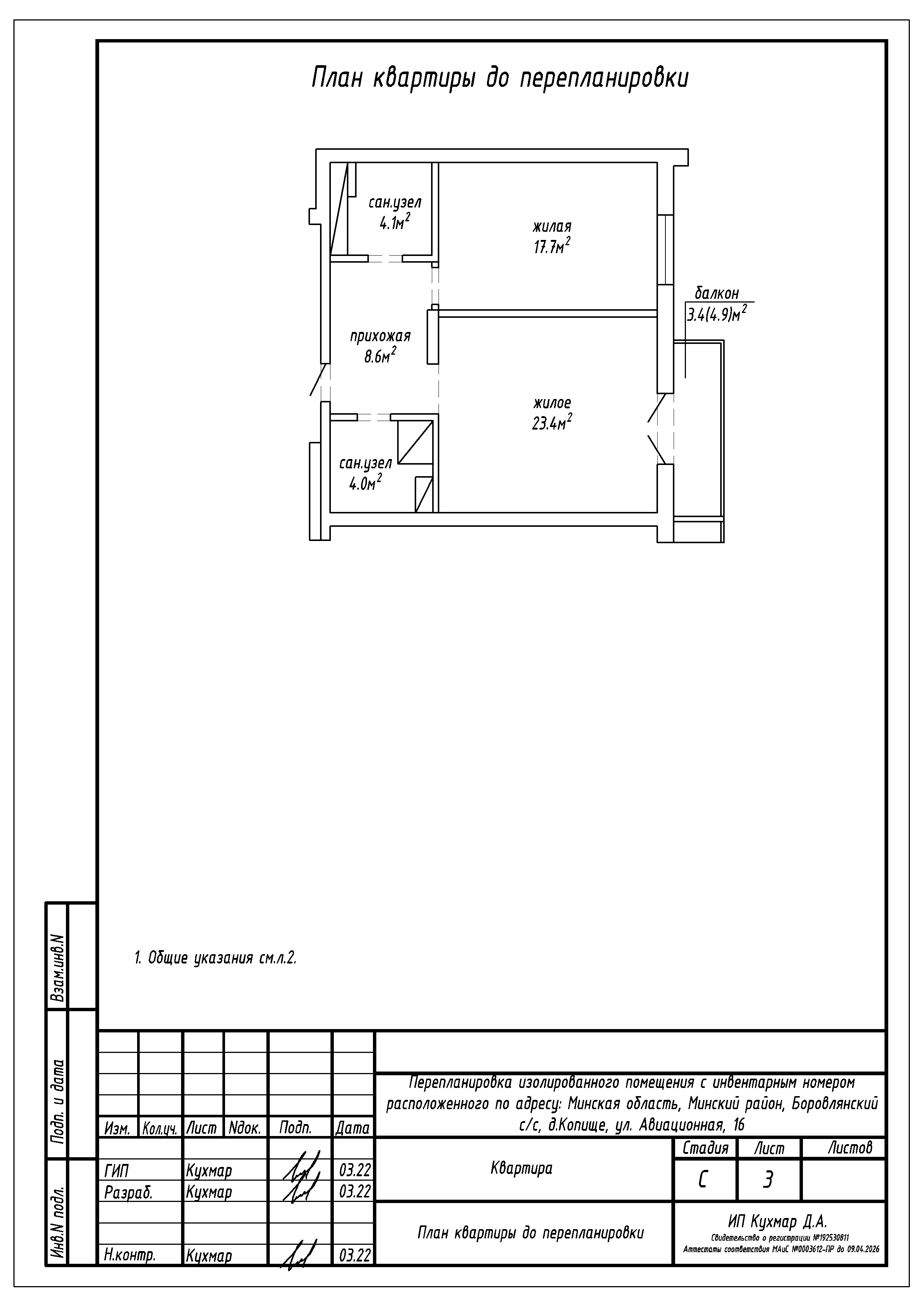
Состав рабочих чертежей основного комплекта раздела АС:
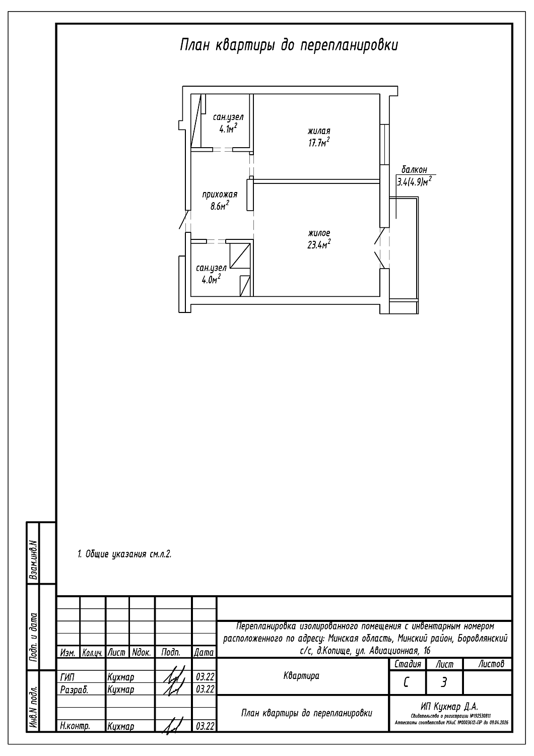
- План квартиры до перепланировки;
- План демонтируемых и возводимых конструкций (монтажный);
- План квартиры после перепланировки;
- Перечень работ, проводимых при перепланировке жилого помещения;
- Указания по устройству полов.
Состав рабочих чертежей основного комплекта раздела ОВ:
- План квартиры с отоплением (существующий вариант);
- План квартиры с отоплением (проектируемый вариант).
