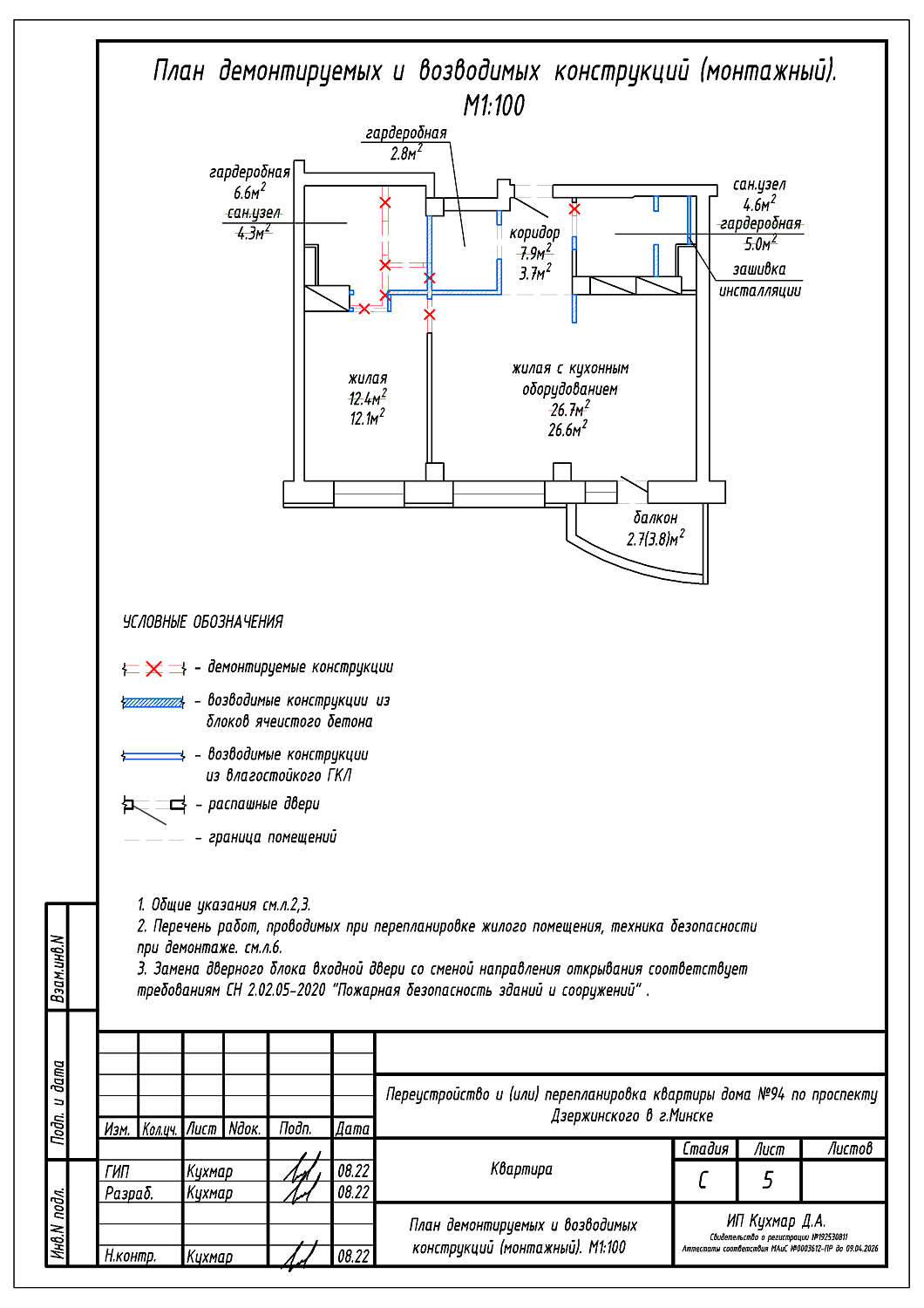
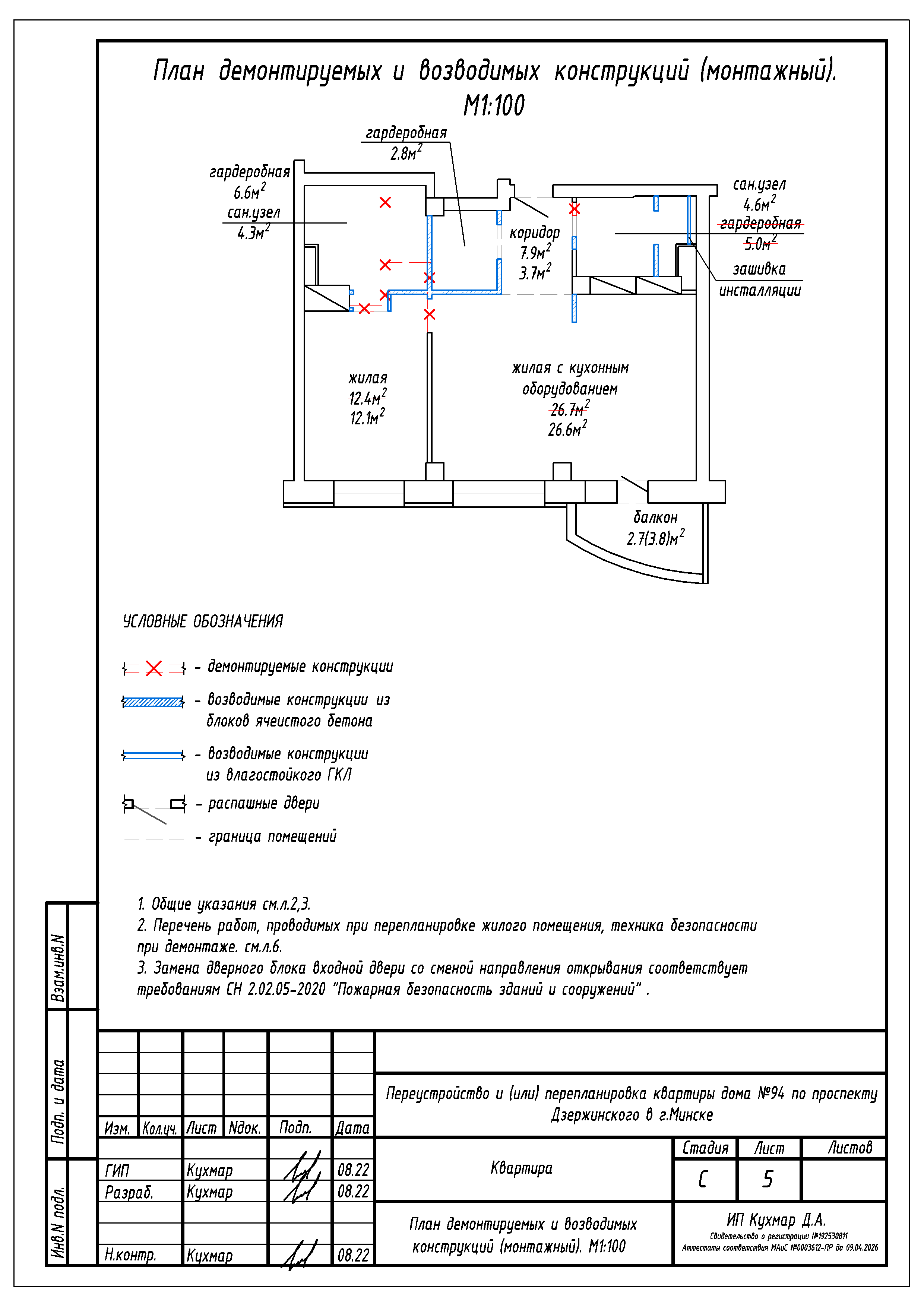
Пожелания заказчика:
- Устройство санузла на площади гардеробной;
- Устройство гардеробной на площади коридора;
- Устройство гардеробной на площади санузла;
- Устройство проёма в перегородке между жилой и жилой с кухонным оборудованием;
- Устройство проёма в перегородке между жилой и гардеробной;
- Устройство перегородки в жилой с кухонным оборудованием.
Нами были разработаны следующие разделы проектной документации для согласования в исполкоме:
- АС - архитектурно-строительные решения.
Состав рабочих чертежей основного комплекта раздела АС:
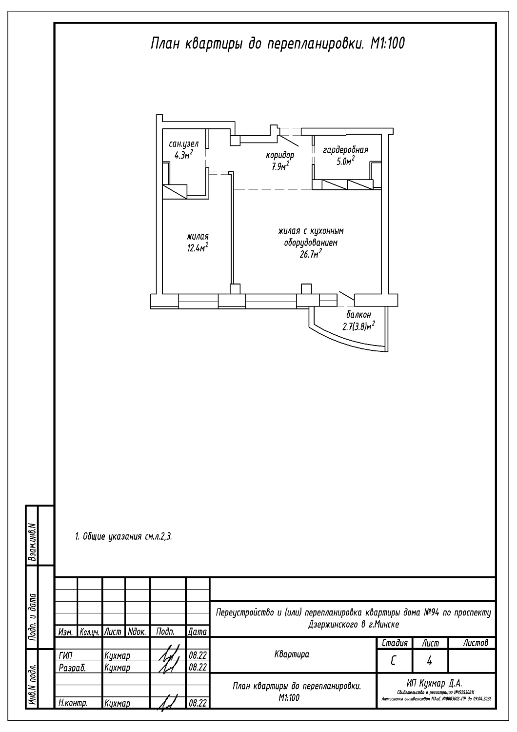
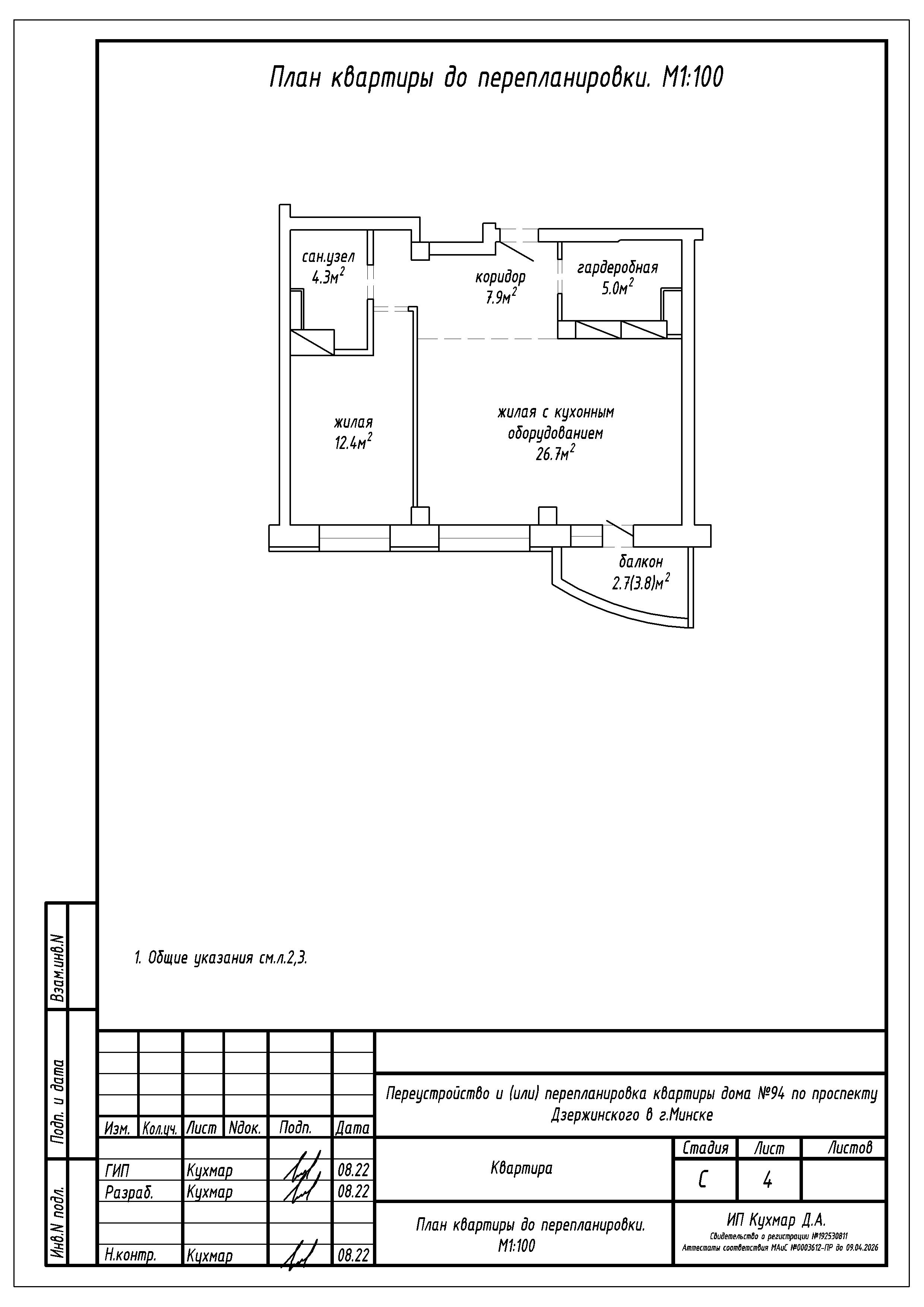
- План квартиры до перепланировки;
- План демонтируемых и возводимых конструкций (монтажный);
- План квартиры после перепланировки;
- Перечень работ, проводимых при перепланировке жилого помещения;
- Указания по устройству полов.
