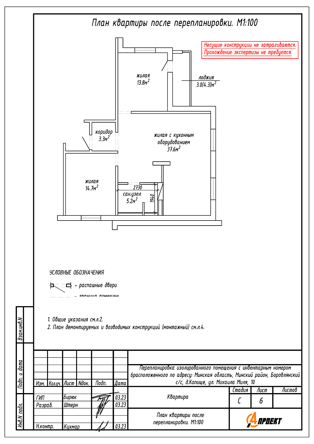
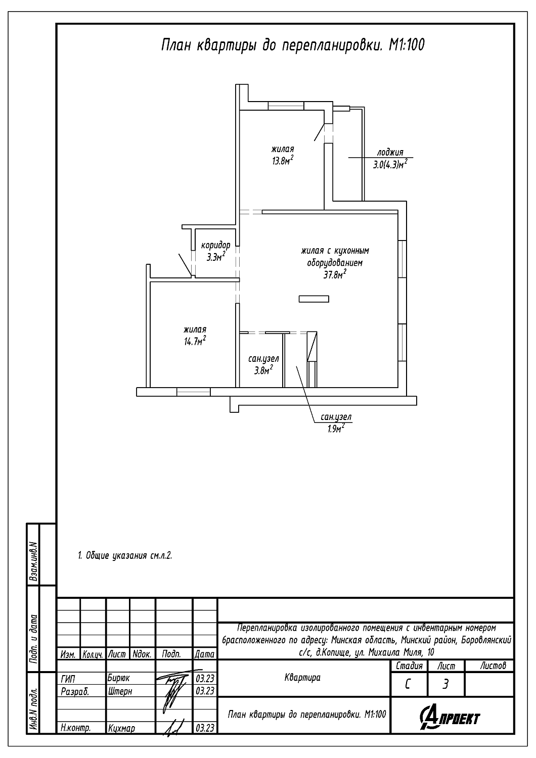
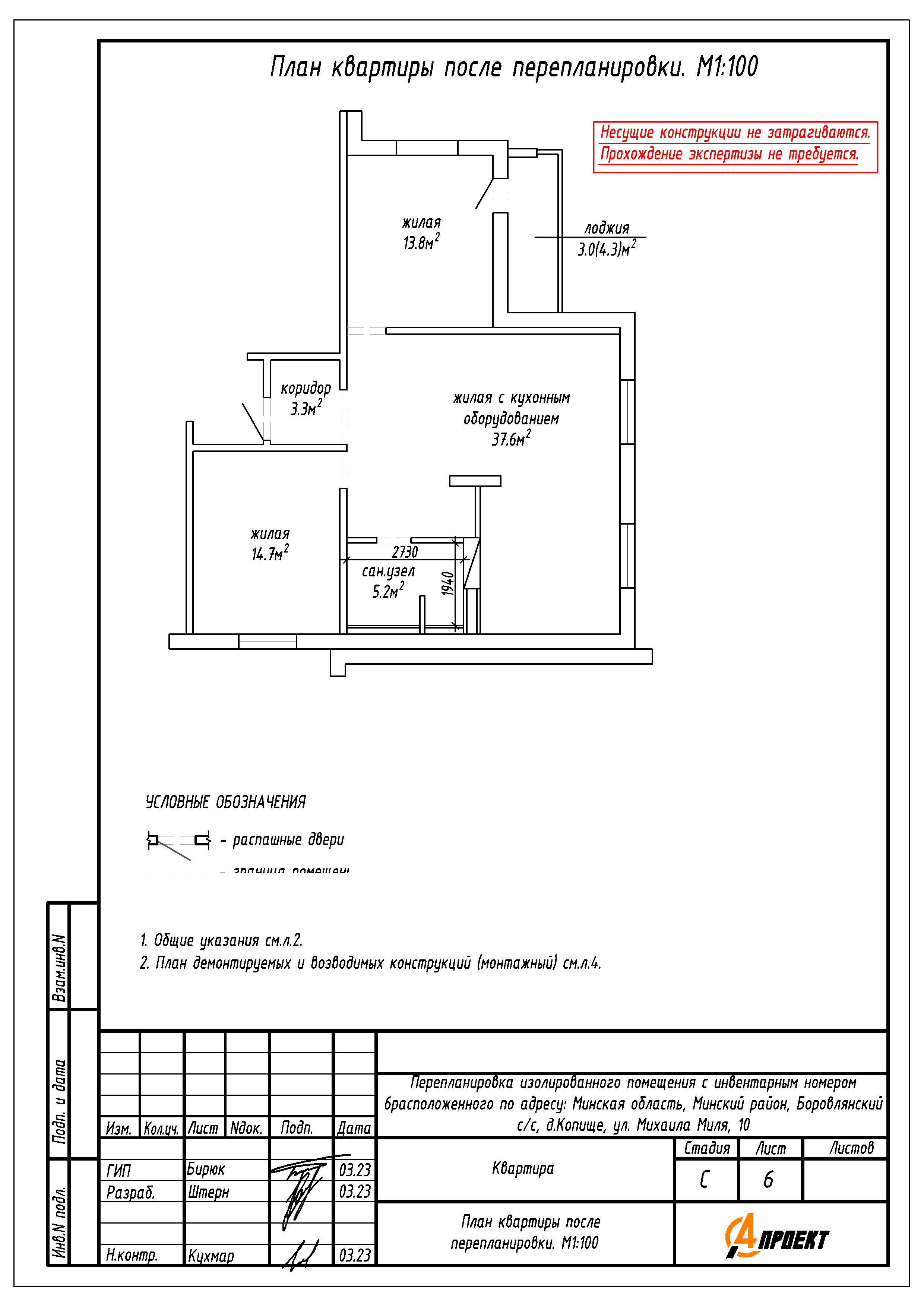
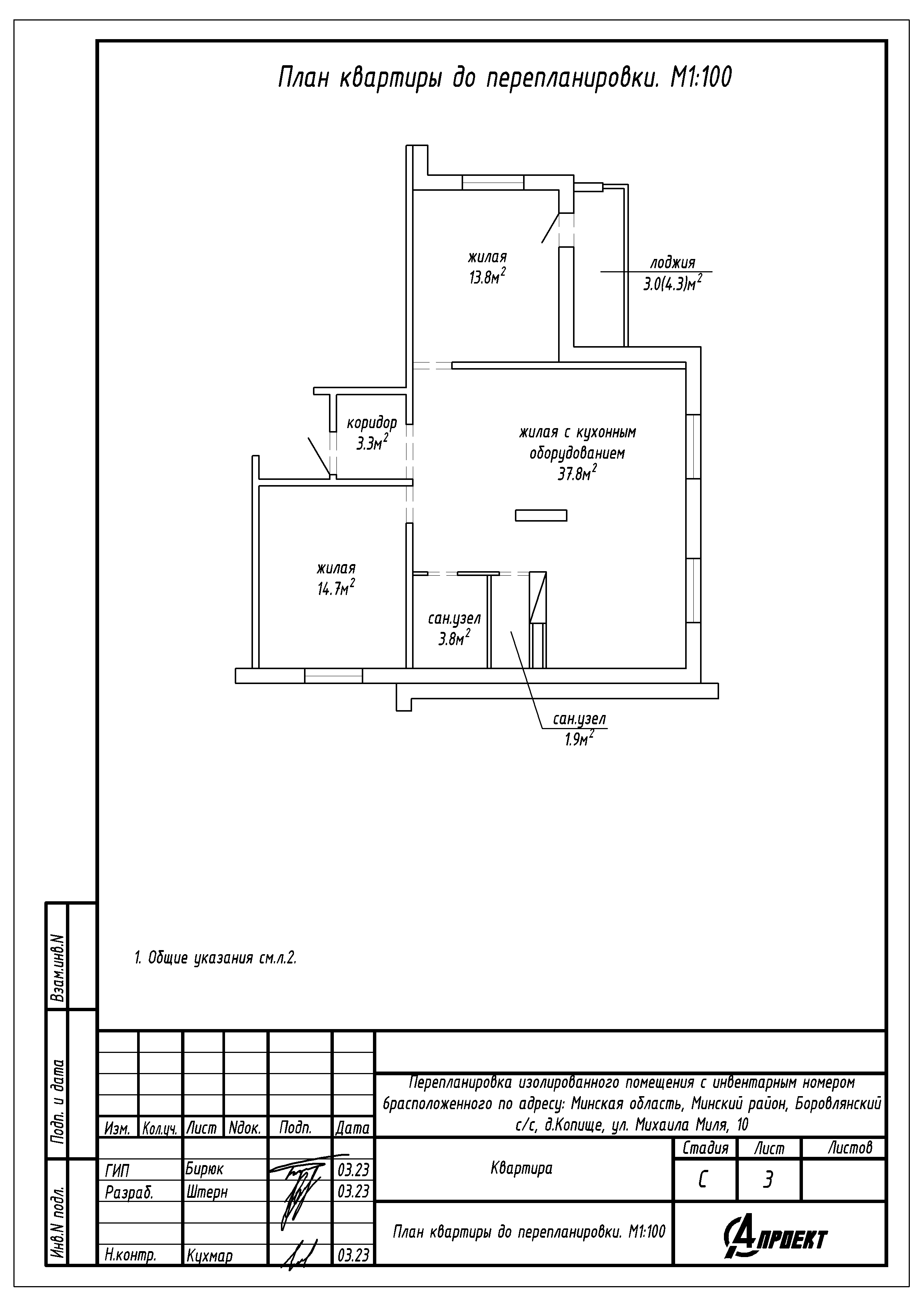
Перепланировка квартиры по ул. Михаила Миля, 10 в ЖК «Новая Боровая»
Пожелания заказчика:
- Объединение ванной и туалета в единый санузел;
- Устройство перегородки на площади жилой с кухонным оборудованием;
- Устройство на площади жилой с кухонным оборудованием коридора, отдельной жилой и жилой с кухонным оборудованием;
- Перенос существующего отопительного прибора.
Нами были разработаны следующие разделы проектной документации для согласования в исполкоме:
- АС - архитектурно-строительные решения;
- ОВ - отопление и вентиляция.
